
68 999 999 Ft
775 281 Ft /m2
89 m2
4
760 m2

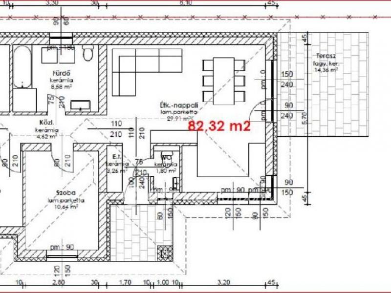
Kunsziget településen új építésű családi házas környezetben, 760 nm alapterületű összközműves telken (víz, villany, gáz), új építésű emelt szintű szerkezet kész készültséggel családi ház leköthető. A település kiváló infrastruktúrával rendelkezik (bölcsőde, óvoda, iskola), Győrtől 18 km távolságra van. A nappali+3 hálószobával rendelkező ház nettó alapterülete 82,32 nm+15 nm terasszal. A hirdetett ház falazata tégla, homlokzatvakolat DRYWIT rendszerrel, 15 cm hőszigeteléssel. Külső nyílászárók: 6 légkamrás, 3 rétegű üvegezésű műanyag ablakok, biztonsági ajtóval. A fűtés korszerű technológiával, hőszivattyús padló / mennyezet hűtés / fűtés. A ház fűtés kész állapotú átadására a szerződés megkötésétől számított 9 - hónap.
Egyedi igényeket is figyelembe véve, nagyobb ház esetén kb. bruttó 500.000.-Ft/nm felárral lehet kalkulálni. Az ár tartalmazza a telek árát is. Amennyiben a hirdetés felkeltette érdeklődését és bővebb információt szeretne, keressen bizalommal elérhetőségeimen!
Állok rendelkezésre ingatlan eladás-vétel, pénzügyi termékek, hitel, CSOK ügyintézésében. Több százas ingatlanállományból biztos megtalálom az Ön igényeinek megfelelőt! Hívjon bizalommal: Komádi Csaba +***********
Referencia szám: M252729-LP
Figyelmeztetés!
A lakpont.com semmiféle felelősséget nem vállal az oldalon megjelent hirdetések tartalmáért, illetve a hirdetésekhez feltöltött képekért! Kérjük keresse a hirdetés feladóját a pontos és részletes információkért.hirdetés
Hirdető:

OTP Ingatlanpont
Győr Rákóczi Ferenc utca 35
hirdetés
hirdetés
Komádi Csaba
Üzenetem elküldésével elfogadom a lakpont.com
Általános Szolgáltatási Feltételeit

© 2017 lakpont.com
Minden jog fenntartva
Üzemelteti: infonet.hu [ ingatlanapp ]