
63 999 999 Ft
842 105 Ft /m2
76 m2
3
760 m2

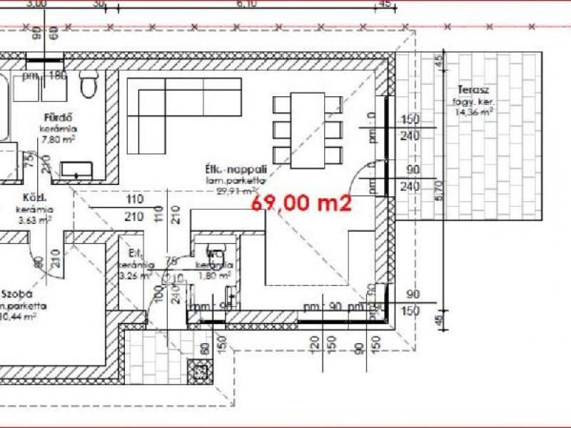
Kunsziget településen új építésű családi házas környezetben, 760 nm alapterületű összközműves telken (víz, villany, gáz), új építésű emelt szintű szerkezet kész készültséggel családi ház leköthető. A település kiváló infrastruktúrával rendelkezik (bölcsőde, óvoda, iskola), Győrtől 18 km távolságra van. A nappali+2 hálószobával rendelkező ház nettó alapterülete 69 nm+15 nm terasszal. A hirdetett ház falazata tégla, homlokzatvakolat DRYWIT rendszerrel, 15 cm hőszigeteléssel. Külső nyílászárók: 6 légkamrás, 3 rétegű üvegezésű műanyag ablakok, biztonsági ajtóval. A fűtés korszerű technológiával, hőszivattyús padló / mennyezet hűtés / fűtés. A ház fűtés kész állapotú átadására a szerződés megkötésétől számított 9 - hónap.
Egyedi igényeket is figyelembe véve, nagyobb ház esetén kb. bruttó 500.000.-Ft/nm felárral lehet kalkulálni. Az ár tartalmazza a telek árát is. Amennyiben a hirdetés felkeltette érdeklődését és bővebb információt szeretne, keressen bizalommal elérhetőségeimen!
Megvásárlása számtalan lehetőséget tartogat Önnek és családjának.
Igény szerint díjmentes, teljes körű hitel ügyintézést biztosítunk, egyedi kedvezményekkel az OTP Csoport szakértelmével.
Felkeltettem érdeklődését keressen alábbi elérhetőségemen. +***********
Referencia szám: M252730-LP
Figyelmeztetés!
A lakpont.com semmiféle felelősséget nem vállal az oldalon megjelent hirdetések tartalmáért, illetve a hirdetésekhez feltöltött képekért! Kérjük keresse a hirdetés feladóját a pontos és részletes információkért.hirdetés
Hirdető:

OTP Ingatlanpont
Győr Bartók Béla utca 8
hirdetés
hirdetés
Borsó Attiláné
Üzenetem elküldésével elfogadom a lakpont.com
Általános Szolgáltatási Feltételeit

© 2017 lakpont.com
Minden jog fenntartva
Üzemelteti: infonet.hu [ ingatlanapp ]