
82.99 M Ft
855 567 Ft /m2
97 m2
3
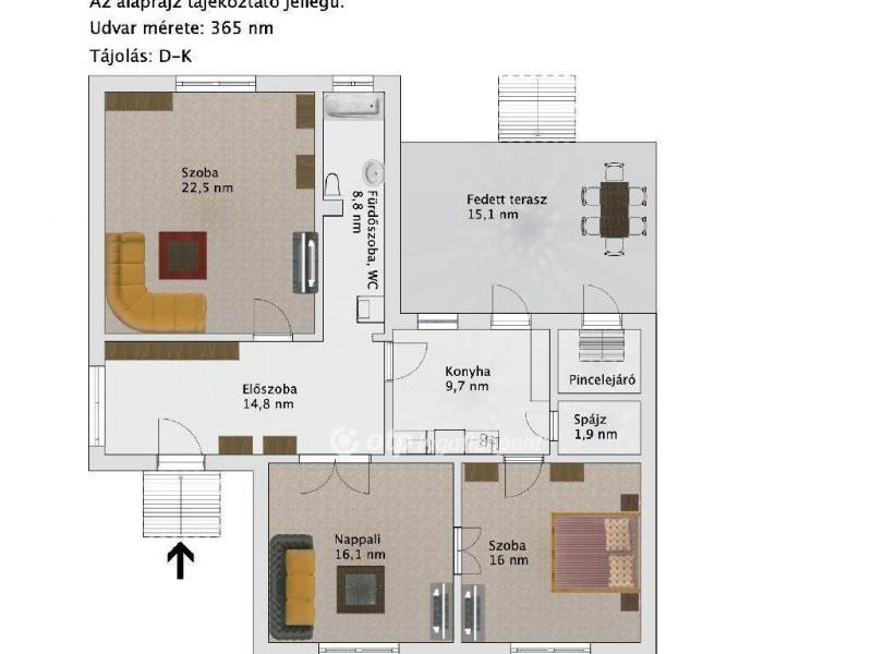
365 m2
3%-os Otthon Start hitelre alkalmas, jogilag rendezett, önálló helyrajzi számos, 3 szobás családi ház eladó Kispesten, a XIX. kerület kertvárosias részén.
A 365 nm-es telken álló, 97 nm-es ingatlan három szobával, konyhával, spájzzal, tágas és jól bútorozható előszobával, valamint nagy fedett terasszal rendelkezik. A házhoz pince és padlás is tartozik, az udvaron pedig autóbeálló biztosított a kerítésen belül. Az elrendezés nagyon kedvező, a nagy ablakoknak és a délkeleti tájolásnak köszönhetően a ház világos és barátságos.
Az ingatlan felújítása 2025-ben döntő részben lezajlott, amelynek keretében teljeskörűen megújultak a villany- és gázvezetékek, a gázkazán, a radiátorok (teljesen újak, használatba sem kerültek), a víz- és szennyvízvezetékek, valamint részben a burkolatok. Szinte minden nyílászáró cserére került, az udvaron tereprendezés történt, a falak gletteltek, festésre előkészítve várják az új tulajdonost. A tető jó állapotú, nem ázik be, a padlásgerendák kifogástalanok, a cserépkályha működőképes. A ház minden közművel rendelkezik, a fűtés korszerű, a rezsiköltség kedvező, körülbelül 20.000 forint havonta.
A környék csendes, rendezett, jó közlekedéssel és infrastruktúrával, a közelben óvoda, iskola, üzletek és közlekedési csomópontok találhatók, kikapcsolódásra pedig hangulatos helyek - például a tradicionális Nótafa Vendéglő - kínálnak lehetőséget, így családok számára különösen ideális választás.
Néhány kisebb befejező munka, például két ablak és két szoba padlójának cseréje, valamint a falak festése még hátra van, de a felújítás nagy része elkészült, a fennmaradó befejezéshez kész terv és árazás is rendelkezésre áll. Kérjük, csak azok keressenek, akik tisztában vannak ezzel, és nem riadnak vissza a kisebb befejezésektől. Az ingatlan lakott, de teljes kifizetés után néhány napon belül birtokba vehető.
Ez a kispesti családi ház remek lehetőség mindazok számára, akik világos, tágas otthont keresnek kiváló elrendezéssel és frissen elvégzett felújítással, amelyet már csak az új tulajdonos ízlése szerint kell befejezni.
M311242
Referencia szám: M311242-LP
Figyelmeztetés!
A lakpont.com semmiféle felelősséget nem vállal az oldalon megjelent hirdetések tartalmáért, illetve a hirdetésekhez feltöltött képekért! Kérjük keresse a hirdetés feladóját a pontos és részletes információkért.hirdetés
Hirdető:
OTP Ingatlanpont
Budapest X. kerület Kőrösi Csoma út 40
hirdetés
hirdetés
Schmeck Orsolya Mária
Üzenetem elküldésével elfogadom a lakpont.com
Általános Szolgáltatási Feltételeit
© 2017 lakpont.com
Minden jog fenntartva
Üzemelteti: infonet.hu [ ingatlanapp ]