
A felhasználói élmény fokozása és célzott hirdetések kiszolgálása érdekében, valamint kényelmi és statisztikai célból weboldalunk adatokat tárol a készülékén (sütiket) és webszervereken. Abban az esetben, ha hozzájárul a sütik használatához, kattintson az OK gombra. Részletesebb információt az Adatkezelési Szabályzatban talál.
ok187.8 M Ft
1.565 M Ft /m2
120 m2
4

Új építésű Balaton-parti lakások Keszthelyen.
A projekt keretében 5 épületből álló, 120 lakásos lakópark kerül kialakításra. A kulcsrakész, magas minőségű, okos otthon megoldással kialakított lakások várható műszaki átadása 2024. harmadik negyedévétől veszi kezdetét.
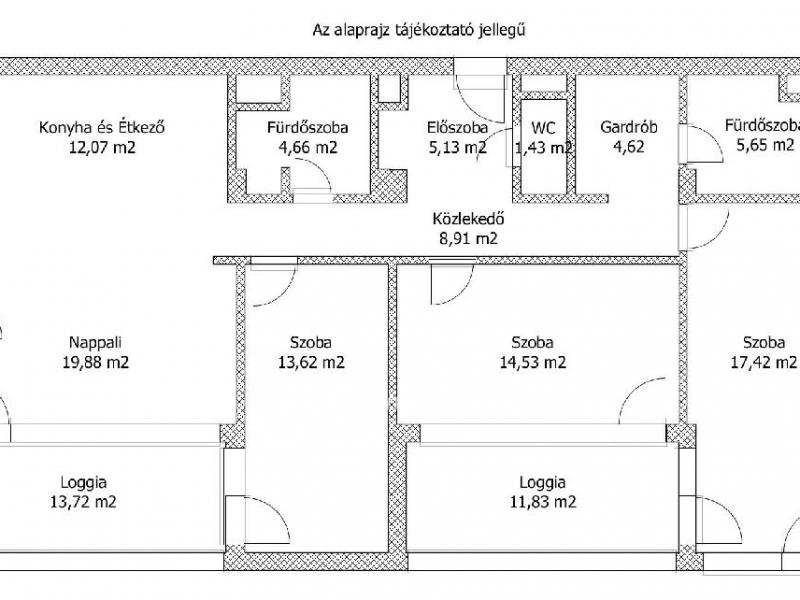
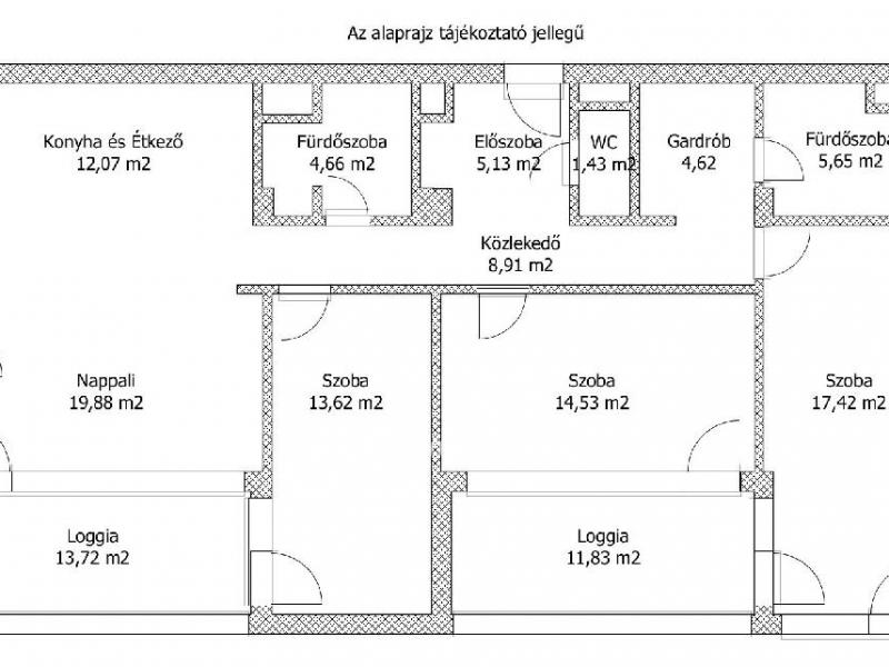
- 5 épületben összesen 120 lakás, 7 különböző méretben (34 m2 - 228 m2)
- Minden lakáshoz tartozik saját loggia, vagy terasz
- Privát, zárt lakópark, saját medencékkel, játszótérrel
- Geotermikus fűtési rendszer és napelem
- AA+ energetikai besorolás- 3 választható belsőépítészeti lehetőség
- Műszaki átadás 2024. Q3
Az épületek az Entz Géza sétány felől egy távirányítós rendszerrel ellátott sorompós behajtón, illetve személyi bejárón keresztül közelíthetőek meg. A lakóházak földszintjén fedett garázs, elektromos autó töltési lehetőség és zárt tárolók találhatók. Az épületek aljában kereskedelmi- és szolgáltatóegységek kerülnek kialakításra. A stúdió, közepes és deluxe méretű lakások elsőtől harmadik emeletig szintenként 7-7 lakással, saját loggia-val lettek tervezve. A felső, negyedik szinten összesen három lakás lesz kialakítva: két penthouse és egy közepes méretű, ezekhez privát terasz kapcsolódik. A lakópark 5 épülete azonos alaprajzi elrendezésű, csak a területen belüli elhelyezkedésükben különböznek. A négyszintes lakóépületekben különböző méretű lakásokat találunk, a 34 m2-es stúdió lakástól a 228 m2-es penthouse lakásig. Minden lakáshoz tartozik erkély, vagy terasz 12 m2-től 150 m2 -ig. Valamennyi lakáshoz földszinti, fedett garázs, kültéri parkoló és tároló is igény szerint vásárolható.
Kiemelkedő minőség és magas műszaki tartalom jellemzi a kulcsrakész lakásokat. A lakások hangszigetelt falakkal, ezenkívül 3 rétegű, prémium minőségű homlokzati és bejárati nyílászárókkal ellátottak. Minden lakáshoz tágas, intim loggia vagy terasz tartozik. A balatoni panorámás, penthouse lakások esetén jakuzzival való kialakítás is lehetséges. A lakópark lakásainak hűtését-fűtését mennyezeti hűtés-fűtés panelek szolgáltatják, amelynek teljesítményét az épületek körül telepített, kiváló hatásfokkal működő talajszonda mezők biztosítják. A rendszer megújuló energiát használ és a nagy méretű, mennyezetről leadott hősugárzó technológiának köszönhetően egyenletes hűtést-fűtést biztosít, amely emeli a lakások hőkomfort érzetét. A korábbi, egy területre irányított hűtő-fűtő rendszerektől eltérően, az egyenletes hőleadás következtében a lakásban nem alakulnak ki hidegebb vagy melegebb pontok. A tetőre installált napelem rendszerek a közösségi helyiségek, medencék és a külső világítás energiaigényeinek ellátásában játszanak jelentős szerepet. Az építtető célja olyan lakások, otthonok és nyaralók kivitelezése, melyek privát loggia-val, klimatizált, prémium minőségű alapanyagokkal, modern 21. századi műszaki technológiával épülnek.
A lakóházak földszintjén fedett garázs, elektromos autótöltési lehetőség, egyéb tárolók találhatók, igény szerint vásárolható.
- felszíni, szabadon álló parkolóhely: 3 000 000 Ft/db
- fedett parkoló: 6 000 000 Ft/db
- elektromos töltési lehetőséggel rendelkező parkoló: 7 000 000 Ft/db
- tároló helyiségek: 1 000 000 Ft-tól 2 200 000 Ft-ig/db
A több, mint 7 hektáros, ősfás telek területén gondozott parkok, játszó- és sport kertek, tanösvények, grillezéshez kialakított helyek, privát medencék és saját stég nyújt változatos és élményekben gazdag kikapcsolódási lehetőségeket. A területen megvalósuló lakópark a hely egyedülálló adottságait kihasználva, könnyed és látványos építészeti megjelenésével harmonikus lakókörnyezetet teremt.
Az OTP Ingatlanpont teljes körű ügyintézéssel áll az eladók és a vevők rendelkezésére. Az OTP Bank hátterével a kiválasztott ingatlan finanszírozásához kedvezményes hitelkonstrukciót kínálunk és díjmentes ügyintézést biztosítunk.
Amennyiben a hirdetés felkeltette érdeklődését, kérdése van, vagy szeretné személyesen megtekinteni, kérem, hívjon bizalommal! M274026
********* Ft
Referencia szám: M274026
Figyelmeztetés!
A lakpont.com semmiféle felelősséget nem vállal az oldalon megjelent hirdetések tartalmáért, illetve a hirdetésekhez feltöltött képekért! Kérjük keresse a hirdetés feladóját a pontos és részletes információkért.hirdetés
Hirdető:

OTP Ingatlanpont
Pécs Rákóczi út 19
hirdetés
hirdetés
Vincze László György
Üzenetem elküldésével elfogadom a lakpont.com
Általános Szolgáltatási Feltételeit

© 2017 lakpont.com
Minden jog fenntartva
Üzemelteti: infonet.hu [ ingatlanapp ]