
72.9 M Ft
1 012 500 Ft /m2
72 m2
2 + 1 fél

KIRÁLYOK VÁROSA - PALOTAVÁROS
Egy 2016-ban épült, újszerű állapotú, tégla építésű társasház 3. emeletén található, 72 nm-es, 3 szobás lakást kínálunk megvételre Székesfehérvár kedvelt városrészén, Palotavárosban.
Ideális választás lehet családoknak, pároknak vagy akár befektetésnek is, hiszen Palotaváros infrastruktúrája kiváló: boltok, iskola, óvoda, buszmegálló, bevásárlási lehetőségek pár perc sétával elérhetők, parkolás az utcán ingyenes.
A társasház és a lakás egyaránt kiváló műszaki és esztétikai állapotú, folyamatosan karbantartott. A fűtésről házközponti rendszer egyedi mérővel gondoskodik, így a rezsi jól kontrollálható. A lakás napfényes, világos, az épület liftes, zárt lépcsőházas.
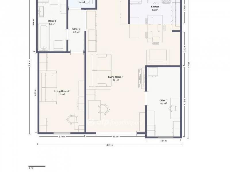
Az ingatlan kiváló elrendezésű: két külön nyíló hálószoba mellett egy tágas, 32 nm-es nappali, konyha és étkező biztosít kényelmes életteret. A lakásban fürdőszoba és külön WC is kialakításra került, a beépített szekrények pedig praktikus tárolási lehetőséget biztosítanak.
Köszönöm, hogy figyelmével megtisztelte hirdetésemet. Amennyiben felkeltette érdeklődését, vagy további kérdések merülnek fel Önben, várom hívását. Időpont egyeztetése után megtekinthető az ingatlan. Nálunk minden ingatlan megtekintése DÍJMENTES! Az OTP Ingatlanpont teljes körű ügyintézéssel áll az eladók és a vevők szolgálatára. A kínálatunkból választott ingatlan finanszírozásához szükség esetén kedvezményes hitelkonstrukciót ajánlunk. Az adásvételi szerződés megkötéséhez igény szerint megbízható ügyvédi közreműködést biztosítunk és segítséget nyújtunk az adásvételhez kapcsolódó ügyintézéshez.
Figyelmeztetés!
A lakpont.com semmiféle felelősséget nem vállal az oldalon megjelent hirdetések tartalmáért, illetve a hirdetésekhez feltöltött képekért! Kérjük keresse a hirdetés feladóját a pontos és részletes információkért.hirdetés
Hirdető:
Veszprém Kossuth utca 8 - OTP Ingatlanpont Iroda
hirdetés
hirdetés
Vukov Gabriella
Üzenetem elküldésével elfogadom a lakpont.com
Általános Szolgáltatási Feltételeit

© 2017 lakpont.com
Minden jog fenntartva
Üzemelteti: infonet.hu [ ingatlanapp ]