
85 M Ft
904 255 Ft /m2
94 m2
4
981 m2

MENDE – PUSZTASZENTISTVÁNI RÉSZ
ÚJ ÉPÍTÉSŰ, 3 SZOBÁS IKERHÁZ SAJÁT KERTTEL!
VÁRHATÓ ÁTADÁS: 2026. SZEPTEMBER–OKTÓBER**
Mende közkedvelt, csendes és nyugodt Pusztaszentistváni városrészén, a vasútállomáshoz közel, de annak zajától kellő távolságra kínálok megvételre egy nettó 94 m²‑es, modern, energiatakarékos, új építésű ikerházat.
Az ingatlan a 981 m²‑es telek első háza, amelyhez 250 m² kizárólagos használatú kert tartozik.
A kert mérete ideális pihenéshez, kerti sütögetéshez, medencéhez vagy akár mobilgarázs elhelyezéséhez.
A telek kialakítása biztosítja a nyugalmat és az intimitást.
MŰSZAKI TARTALOM – IDŐTÁLLÓ, MINŐSÉGI KIVITELEZÉS
- 30 cm nútféderes tégla falazat
- Fa födém
- Antracit betoncserép fedés
- 15 cm EPS homlokzati szigetelés
- 10 cm Austrotherm padlószigetelés
- 25 cm ásványgyapot födémszigetelés
- 6 légkamrás, 3 rétegű üvegezésű műanyag nyílászárók
A kivitelezés célja a hosszú távú tartósság és a kedvező fenntartási költségek biztosítása.
MODERN, GAZDASÁGOS FŰTÉSRENDSZER
- 10 kW monoblokkos hőszivattyú
- Teljes körű padlófűtés
A korszerű gépészetnek köszönhetően az ingatlan alacsony rezsivel üzemeltethető.
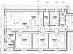
PRAKTIKUS, CSALÁDBARÁT ELRENDEZÉS
- 3 külön nyíló, tágas szoba
- Amerikai konyhás nappali
- Fürdőszoba + külön WC
- Külön háztartási helyiség
Az alaprajz átgondolt, jól élhető terekkel, ideális családok számára.
VÁLASZTHATÓ BURKOLATOK ÉS SZANITEREK (KÖLTSÉGKERETEN BELÜL)
- Hideg- és melegburkolatok: 5.000 Ft/m²‑ig
- Csaptelepek: 25.000 Ft/db
- Kád vagy zuhanyzó: 70.000 Ft
- Beltéri ajtók: 50.000 Ft/db
- Falsík mögötti WC rendszer
Magasabb kategóriájú termékek is választhatók a különbözet megfizetésével.
ELEKTROMOS KIÉPÍTÉS
- Szobákban: 3–3 konnektor
- Nappaliban: 4 konnektor + internet + kábel TV kiállás
- Konyhában: 6 konnektor
- Helyiségenként világítási kiállás
- Kábel TV előkészítés
- Riasztó és kapumozgató elektronika előkészítése
MEGBÍZHATÓ KIVITELEZŐ
A kivitelező Kókán és Sülysápon több mint 30 referenciaingatlant épített.
Komoly érdeklődés esetén referenciaházak megtekintése lehetséges.
ÁTADÁS
2026. szeptember–október
Ha szeretné családját biztos, értékálló, modern otthonban tudni Mendén, kérem keressen bizalommal.
Nézzük meg együtt leendő új otthonát!
A vásárlást független hitelügyintézővel is segítem.
Íme egy tömörebb, lendületesebb változat:
Forduljon hozzám bizalommal ingatlanügyeiben!
A Duna House teljes kínálatával és professzionális szolgáltatásaival állok rendelkezésére:
-Ingyenes hitelügyintézés a Credipass segítségével, gyorsan és kedvező feltételekkel
-Teljes körű ügyintézés eladáshoz és vásárláshoz
-Gyors és megbízható energetikai tanúsítvány
-Ingyenes tanácsadás és értékbecslés
-Megbízható ügyvédi háttér az adásvétel gördülékeny lebonyolításához
További információ:
*****://*************.**.**/
*****://***.********.***/*******.**********************
Érd: Abonyi Andrea, e-mail: ******.******@**.**, tel: +**/** *** ****
Referencia szám: HZ040483
Figyelmeztetés!
A lakpont.com semmiféle felelősséget nem vállal az oldalon megjelent hirdetések tartalmáért, illetve a hirdetésekhez feltöltött képekért! Kérjük keresse a hirdetés feladóját a pontos és részletes információkért.hirdetés
Hirdető:

Duna House
Villa Gyömrő
hirdetés
hirdetés
Abonyi Andrea
Üzenetem elküldésével elfogadom a lakpont.com
Általános Szolgáltatási Feltételeit

© 2017 lakpont.com
Minden jog fenntartva
Üzemelteti: infonet.hu [ ingatlanapp ]