
100 M Ft
943 396 Ft /m2
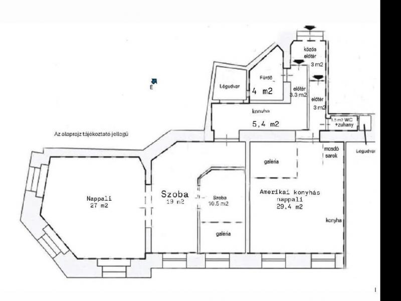
106 m2
4

***Kizárólag Nálunk!*** Felújított, világos lakás a Corvin negyedben! 2 lakás egyben! OSP-vel is!
Budapest VIII. kerület, a Corvin negyedben, a József körúton eladó egy 106 m2-es, 4 szobás, felújított, világos, 3. emeleti lakás. Az ingatlan egyik különlegessége, hogy egyben és két külön lakásként is funkcionálhat.
Jelenleg egy közös bejáratról, de külön megközelíthetően található benne:
- egy 35 m2-es garzonlakás konyhával és fürdőszobával
- valamint egy 71 m2-es, 3 szobás lakás
Ez a kialakítás ideális lehet két generáció együttélésére, lakás-iroda kombinációra, illetve befektetési célra is, hiszen a lakrészek külön-külön vagy együtt is bérbe adhatók.
Műszaki és esztétikai jellemzők:
- A lakás 2024-ig több ütemben felújításon esett át (vezetékcsere, burkolatcsere, fűtéskorszerűsítés, konyhafelújítás, szaniterek, nyílászárók, stb.)
- Legutóbb kondenzációs kazáncsere történt, amely korszerű és hatékony fűtést biztosít
- Rendkívül világos, körbenapozott terek
- Hang- és hőszigetelt műanyag nyílászárók, a József körútra néző ablakokkal
- Két helyiségben galéria (kb. 1,7 m belmagassággal), amely tovább növeli a hasznos teret
- Ízléses, egyedi burkolatok és hangulatos csillárok
Társasház:
- Jó állapotú, rendezett ház
- Jó lakóközösség
Jogi helyzet:
-1/1 tulajdon
-Tehermentes
- Rövid időn belül költözhető
A gépek, berendezések, bútorok ára 10 mill. Ft, mely kötelezően megvásárolandó!
Ingatlanjogász ügyvédi iroda vagyunk.
Referencia szám: M320627-LP
Figyelmeztetés!
A lakpont.com semmiféle felelősséget nem vállal az oldalon megjelent hirdetések tartalmáért, illetve a hirdetésekhez feltöltött képekért! Kérjük keresse a hirdetés feladóját a pontos és részletes információkért.hirdetés
Hirdető:

OTP Ingatlanpont
Budapest XIII. kerület Pannónia utca 25
hirdetés
hirdetés
Erdélyi Miklós István
Üzenetem elküldésével elfogadom a lakpont.com
Általános Szolgáltatási Feltételeit

© 2017 lakpont.com
Minden jog fenntartva
Üzemelteti: infonet.hu [ ingatlanapp ]