
A felhasználói élmény fokozása és célzott hirdetések kiszolgálása érdekében, valamint kényelmi és statisztikai célból weboldalunk adatokat tárol a készülékén (sütiket) és webszervereken. Abban az esetben, ha hozzájárul a sütik használatához, kattintson az OK gombra. Részletesebb információt az Adatkezelési Szabályzatban talál.
ok29.9 M Ft
321 505 Ft /m2
93 m2
1 + 2 fél

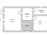
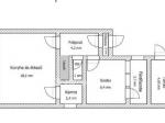
Kizárólag az OTP Ingatlanpont kínálatában! Jász-Nagykun-Szolnok vármegyében, Kunszentmárton egyik kedvelt részén kínálunk eladásra egy 93 nm-es, kényelmes és tágas sorházat, ahol igazán otthonra lehet találni. A földszinten egy hangulatos étkezős konyha, praktikus kamra, egy félszoba, fürdőszoba, külön WC, közlekedő és egy hasznos tároló kapott helyet. Az emeleten egy világos szoba, egy félszoba, előszoba, fürdő WC-vel, valamint egy nagy, napfényes erkély várja az új tulajdonost. A ház összkomfortos, a meleget radiátoros fűtés biztosítja, így minden adott a kényelmes mindennapokhoz. Az ingatlan elhelyezkedése igazán előnyös, pár perc sétával elérhetők a boltok, óvoda, iskola és az orvosi rendelők, minden, amire egy családnak szüksége lehet. Szívből ajánlom azoknak, akik nagyobb otthonba költöznének, nagycsaládosoknak, vagy bárkinek, aki szeretne egy barátságos kis udvarral rendelkező, kényelmes házba hazatérni nap mint nap. Ha érdeklődsz az ingatlan iránt, keress bizalommal, akár hétvégén is! Nézzük meg együtt! Legújabb szolgáltatásként ajánlom minden kedves ügyfelem részére az OTP Bank által közvetített Babaváró, CSOK PLUSZ, Otthon Start Hitelprogram vagy egyéb kölcsönök intézését. Az OTP Ingatlanpont kedvezményes pénzügyi konstrukciókkal áll ügyfelei rendelkezésére! VIP-szolgáltatást nyújtunk az OTP-hiteltermékek ügyintézésében. Jogi és pénzügyi segítséget nyújtanak szakértőink, hogy az adásvétel folyamata gördülékeny legyen. Amennyiben a vételár a kérdés, és úgy gondolja még nincs meg az összeg a leendő új otthonra? Lehet, hogy még is rendelkezésére áll a vételár csak még Ön nem is tudja? Tisztában van valóban az anyagi lehetőségeivel? Az áthidaló megoldásokkal? Esetleg csak az az akadály, hogy nem adta el még a saját ingatlanját? Nem gond, a tulajdonosaink, eladóink szívesen megvárják Önt, segítünk a gyors értékesítésben is. Ne maradjon le a vételről, ha már megtalálta a megfelelő új otthont! Szolgáltatásunk ingyenes, kizárólag sikeres értékesítés esetén van megbízási díj fizetési kötelezettség. A vevők is nálunk vannak és lehet az Ön ingatlanjára várnak?! Tudjon meg többet, hívjon bizalommal! Eladó ingatlanja van? Nincs vevője? Hívjon segítek az értékesítésben! Kedvező hitelajánlatokkal (BABAVÁRÓ hitel, piaci hitel, és szabadfelhasználású hitel) várjuk jelentkezését. Számos konstrukció közül választhatnak. Irodáink Szentes, Petőfi utca 12. (a buszmegálló felől) és Csongrád, Fő utca 54. szám alatt várja a személyes érdeklődőket. ***VÁLASSZUK KI EGYÜTT AZ ÖNNEK LEGMEGFELELŐBB AJÁNLATOT! BANKI SORBAN ÁLLÁS NÉLKÜL! ***
Referencia szám: M317616-LP
Figyelmeztetés!
A lakpont.com semmiféle felelősséget nem vállal az oldalon megjelent hirdetések tartalmáért, illetve a hirdetésekhez feltöltött képekért! Kérjük keresse a hirdetés feladóját a pontos és részletes információkért.hirdetés
Hirdető:

OTP Ingatlanpont
Szentes Petőfi utca 12
hirdetés
hirdetés
Fábrik-Csendes Zsuzsanna
Üzenetem elküldésével elfogadom a lakpont.com
Általános Szolgáltatási Feltételeit

© 2017 lakpont.com
Minden jog fenntartva
Üzemelteti: infonet.hu [ ingatlanapp ]