
A felhasználói élmény fokozása és célzott hirdetések kiszolgálása érdekében, valamint kényelmi és statisztikai célból weboldalunk adatokat tárol a készülékén (sütiket) és webszervereken. Abban az esetben, ha hozzájárul a sütik használatához, kattintson az OK gombra. Részletesebb információt az Adatkezelési Szabályzatban talál.
ok24.9 M Ft
360 870 Ft /m2
69 m2
2
3597 m2

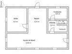
Kizárólag az OTP Ingatlanpont kínálatában! Eladásra kínálunk Csongrád-Csanád vármegyében, Magyartés csendes, természetközeli részén egy jó állapotú, 3597 nm-es telken elhelyezkedő tanyát. A területen több melléképület is található, melyek állattartásra kiválóan alkalmasak. A tanya teljes egészében körbekerített. A 69 nm-es lakóház praktikus elrendezésű. Sarokkádas fürdőszoba, előszoba, nappali, hálószoba, konyha étkezővel, külön WC-vel rendelkezik. A fűtés padlófűtéssel, vízteres kandallóval megoldott, a hálószobában pedig radiátor is biztosítja a kellemes hőmérsékletet. A padlástér beépíthető, így a ház tovább bővíthető. A környék rendkívül nyugodt, igazi békét és vidéki hangulatot kínál, a közelben pedig a Kurca és a Körös folyók is megtalálhatók. Ajánlom mindazoknak, akik csendes, természetközeli környezetben keresnek otthont vagy gazdálkodásra alkalmas birtokot. Ha érdeklődsz az ingatlan iránt, keress bizalommal! Nézzük meg együtt! Az OTP Ingatlanpont kedvezményes pénzügyi konstrukciókkal áll ügyfelei rendelkezésére! VIP-szolgáltatást nyújtunk az OTP-hiteltermékek ügyintézésében. Jogi és pénzügyi segítséget nyújtanak szakértőink, hogy az adásvétel folyamata gördülékeny legyen. Amennyiben a vételár a kérdés, és úgy gondolja még nincs meg az összeg a leendő új otthonra? Lehet, hogy még is rendelkezésére áll a vételár csak még Ön nem is tudja? Tisztában van valóban az anyagi lehetőségeivel? Az áthidaló megoldásokkal? Esetleg csak az az akadály, hogy nem adta el még a saját ingatlanját? Nem gond, a tulajdonosaink, eladóink szívesen megvárják Önt, segítünk a gyors értékesítésben is. Ne maradjon le a vételről, ha már megtalálta a megfelelő új otthont! Szolgáltatásunk ingyenes, kizárólag sikeres értékesítés esetén van megbízási díj fizetési kötelezettség. A vevők is nálunk vannak és lehet az Ön ingatlanjára várnak?! Tudjon meg többet, hívjon bizalommal! Eladó ingatlanja van? Nincs vevője? Hívjon segítek az értékesítésben! Kedvező hitelajánlatokkal (BABAVÁRÓ hitel, piaci hitel, és szabadfelhasználású hitel) várjuk jelentkezését. Számos konstrukció közül választhatnak. Irodáink Szentes, Petőfi utca 12. (a buszmegálló felől) és Csongrád, Fő utca 54. szám alatt várja a személyes érdeklődőket. ***VÁLASSZUK KI EGYÜTT AZ ÖNNEK LEGMEGFELELŐBB AJÁNLATOT! BANKI SORBAN ÁLLÁS NÉLKÜL! ***
Referencia szám: M317451-LP
Figyelmeztetés!
A lakpont.com semmiféle felelősséget nem vállal az oldalon megjelent hirdetések tartalmáért, illetve a hirdetésekhez feltöltött képekért! Kérjük keresse a hirdetés feladóját a pontos és részletes információkért.hirdetés
Hirdető:

OTP Ingatlanpont
Szentes Petőfi utca 12
hirdetés
hirdetés
Dr. Szabados Éva
Üzenetem elküldésével elfogadom a lakpont.com
Általános Szolgáltatási Feltételeit

© 2017 lakpont.com
Minden jog fenntartva
Üzemelteti: infonet.hu [ ingatlanapp ]