
A felhasználói élmény fokozása és célzott hirdetések kiszolgálása érdekében, valamint kényelmi és statisztikai célból weboldalunk adatokat tárol a készülékén (sütiket) és webszervereken. Abban az esetben, ha hozzájárul a sütik használatához, kattintson az OK gombra. Részletesebb információt az Adatkezelési Szabályzatban talál.
ok85.545 M Ft
1 425 750 Ft /m2
60 m2
3

Dunaharaszti legkedveltebb lakóparkjában új otthon várja Önt prémium kivitelezésben!
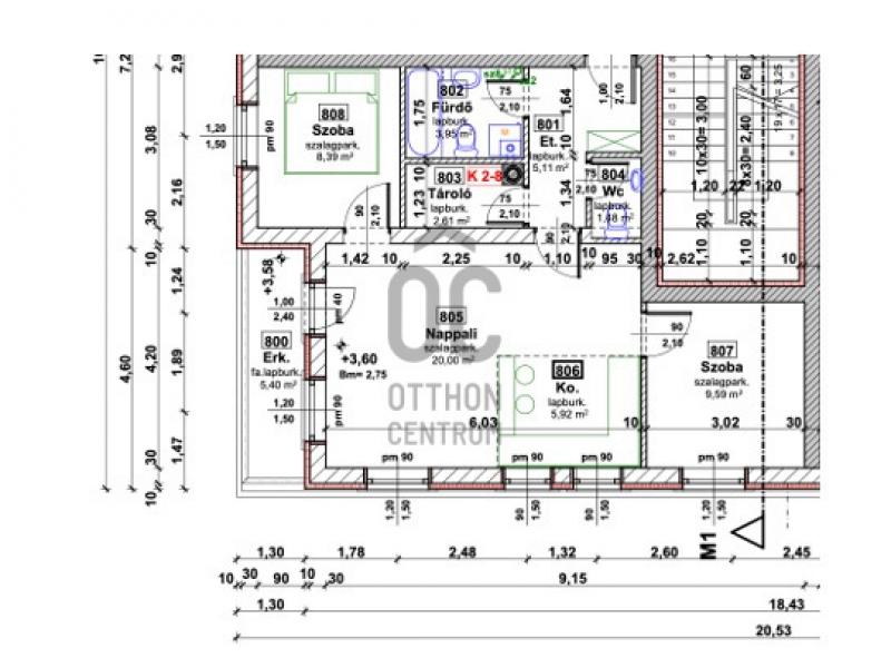
Eladó egy amerikai konyhás nappali + 2 hálószobás, kertkapcsolatos lakás erkéllyel, kis lakásszámú, csendes társasházban. A lakás egész nap benapozott a kedvelt tájolásának köszönhetően.
A lakás prémium minőségben épült- megbízható beruházótól, modern kényelmi megoldásokkal:
Fűtés és meleg víz, padlófűtés lakásonként külön hőszivattyús rendszerről működik
Fan-coil klíma hűtés
Riasztó és kaputelefon
5,4 nm-es erkély, ahol a nyugalom és a kényelem találkozik.
Tágas fürdő wc-vel + külön wc kézmosóval
Saját tároló, plusz padlástérben extra pakolóhely
2 gépkocsi számára kijelölt parkoló
Nyugodt, zöldövezeti környezet garantálja a harmóniát.
A közelben minden megtalálható a kényelmes élethez: bevásárlási lehetőség, bölcsöde-óvoda-iskola, játszótér-sportpálya, egészségügyi intézmények, tömegközlekedés. Budapest jelenleg busszal, HÉV-el könnyen is elérhető, hamarosan a vonatközlekedés is újra indul.
Már 10% befizetéssel lefoglalható!
Bankfüggetlen tanácsadással segítjük vevőinket a számukra legjobb hitelkonstrukciók kiválasztásában.
Ne maradjon le erről a lehetőségről – ez az otthon nem csak szép, de okosan is megtervezett.
A társasházban további lakások eladók akár kertkapcsolattal és gépkocsi beállókkal.
Műszaki leírással és teljes dokumentációval segítünk a döntésben.
Jöjjön és érezze meg, hogy milyen az új otthona messze a város zajától!
Kiváló befektetés is Dunaharasztin keresett a kiadó lakás! Sok multicég a környéken!
Referencia szám: U0048962
Figyelmeztetés!
A lakpont.com semmiféle felelősséget nem vállal az oldalon megjelent hirdetések tartalmáért, illetve a hirdetésekhez feltöltött képekért! Kérjük keresse a hirdetés feladóját a pontos és részletes információkért.hirdetés
Hirdető:
Otthon Centrum
XIX. kerület - Corvin körút
hirdetés
hirdetés
Fejes Hajnalka
Üzenetem elküldésével elfogadom a lakpont.com
Általános Szolgáltatási Feltételeit

© 2017 lakpont.com
Minden jog fenntartva
Üzemelteti: infonet.hu [ ingatlanapp ]