
A felhasználói élmény fokozása és célzott hirdetések kiszolgálása érdekében, valamint kényelmi és statisztikai célból weboldalunk adatokat tárol a készülékén (sütiket) és webszervereken. Abban az esetben, ha hozzájárul a sütik használatához, kattintson az OK gombra. Részletesebb információt az Adatkezelési Szabályzatban talál.
ok34.9 M Ft
239 041 Ft /m2
146 m2
3 + 1 fél

Pápa Belvárosában Eladó egy Kivételes Lakás!
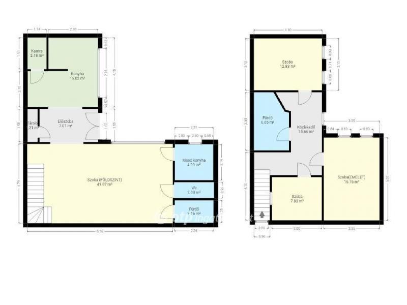
Pápa történelmi belvárosában, egy hangulatos társasházban kínálunk eladásra egy 2 szintes, összesen 146 m? alapterületű, 3+1 SZOBÁS lakást. Az ingatlan egy csendes, hátsó udvari traktusban helyezkedik el, külön BEJÁRATTAL. A társasház mindössze 2 lakást és 2 üzlethelyiséget foglal magában, így garantáltan nyugodt környezet várja az új tulajdonost.
Az alsó szinten egy 42 m?-es HATALMAS nappali, egy tágas 16 m?-es KONYHA, kamra, előszoba, WC, zuhanykabinos fürdőszoba, háztartási helyiség, tároló és egy GARDRÓB található, valamint egy impozáns, 50 m?-es TERASZ nyújt lehetőséget a szabadban való kikapcsolódásra. Az emeletre érkezve egy közlekedő, egy fürdőszoba WC-vel, valamint három - összesen 42 m? alapterületű - kényelmes szoba várja Önt.
Az ingatlan jelenlegi nyílászárói fa szerkezetűek, modernizáció szükséges lehet, de a lakás korának megfelelő állapotban van. Az ingatlan fűtését egy pincében található GÁZKAZÁN biztosította, de jelenleg a gázszolgáltatás szünetel, ezáltal a fűtési rendszer felújítást igényel.
Az elhelyezkedés szempontjából az ingatlan kiválóan pozicionált, hiszen mindössze néhány perc sétára találhatóak a helyi boltok, iskolák és a város FŐTERE. Ezáltal ideális választás minden KOROSZTÁLY számára, akik a városi élet kényelmét keresik.
NE HAGYJA KI ezt a ritka lehetőséget, hogy Pápa belvárosában egy ilyen kiváló paraméterekkel rendelkező ingatlan tulajdonosa legyen!
Érdeklődjön még ma és tegye meg az első lépést álmai otthona felé! Az adott ingatlan jelenleg államilag támogatott hitel felvételére nem alkalmas!
Amennyiben felkeltette ez a remek ingatlan a figyelmét, vagy kérdése lenne keressen bizalommal!
Érdeklődni: Molnár Márk Telefon: ** ** *** ****
Referencia szám: M283319-LP
Figyelmeztetés!
A lakpont.com semmiféle felelősséget nem vállal az oldalon megjelent hirdetések tartalmáért, illetve a hirdetésekhez feltöltött képekért! Kérjük keresse a hirdetés feladóját a pontos és részletes információkért.hirdetés
Hirdető:
Pápa Eötvös utca 16 - OTP Ingatlanpont Iroda
hirdetés
hirdetés
Molnár Márk István
Üzenetem elküldésével elfogadom a lakpont.com
Általános Szolgáltatási Feltételeit

© 2017 lakpont.com
Minden jog fenntartva
Üzemelteti: infonet.hu [ ingatlanapp ]