
A felhasználói élmény fokozása és célzott hirdetések kiszolgálása érdekében, valamint kényelmi és statisztikai célból weboldalunk adatokat tárol a készülékén (sütiket) és webszervereken. Abban az esetben, ha hozzájárul a sütik használatához, kattintson az OK gombra. Részletesebb információt az Adatkezelési Szabályzatban talál.
ok350 e Ft
3 889 Ft /m2
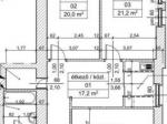
90 m2
3

Szeged belvárosában, bútorozatlan, 90 m?-es nagypolgári lakás kiadó! A második emeleti lakás, függőfolyosóról közelíthető meg. Tágas elrendezés és klasszikus belső jellemzi. A lakásban három külön bejáratú szoba, nagy étkező, főzőfülke, felújított fürdőszoba, külön mellékhelyiség és kamra található. A szobákban eredeti, kiváló állapotú parketta, a többi helyiségben járólap található. A fa nyílászárók felújítottak. A lakás hangulata, még bútorozatlanul is a klasszikus polgári eleganciát tükrözi. Az otthon melegéről gázcirkó fűtés, radiátoros hőleadókka míg a hűtéséről klíma gondoskodik. Ez a lakás ideális választás mindazok számára, akik értékelik a belváros közelségét és Szeged különleges, polgári hangulatát. Az ingatlan 1 havi bérleti díj és a kéthavi kaució megfizetése után azonnal birtokba vehető.
Figyelmeztetés!
A lakpont.com semmiféle felelősséget nem vállal az oldalon megjelent hirdetések tartalmáért, illetve a hirdetésekhez feltöltött képekért! Kérjük keresse a hirdetés feladóját a pontos és részletes információkért.hirdetés
Hirdető:

OTP Ingatlanpont
Szeged Széchenyi tér 6
hirdetés
hirdetés
Kádár Zoltán László
Üzenetem elküldésével elfogadom a lakpont.com
Általános Szolgáltatási Feltételeit

© 2017 lakpont.com
Minden jog fenntartva
Üzemelteti: infonet.hu [ ingatlanapp ]