
95 M Ft
1 759 259 Ft /m2
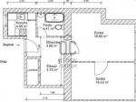
54 m2
2

Eladó egy 54 négyzetméteres, 2 szobás lakás Kelenföldön. Az alacsony rezsijű, világos lakás jó környezetben helyezkedik el, hiszen a közeli üzletek, éttermek és szolgáltatások mindössze pár perc sétával elérhetőek.. A közlekedési lehetőségek kiemelkedőek: a közeli busz- és villamosmegállók révén a város többi része is gyorsan elérhető, A zöld területek közelsége lehetőséget ad a szabadidő kellemes eltöltésére, legyen szó sétáról vagy sportolásról. Az ingatlan tehermentes, így a vásárlás folyamata gyorsan és zökkenőmentesen lebonyolítható. Amennyiben felkeltette érdeklődését az ingatlan, akkor keressen bizalommal.
Figyelmeztetés!
A lakpont.com semmiféle felelősséget nem vállal az oldalon megjelent hirdetések tartalmáért, illetve a hirdetésekhez feltöltött képekért! Kérjük keresse a hirdetés feladóját a pontos és részletes információkért.hirdetés
Hirdető:
XI. kerület - Bicskei utca
hirdetés
hirdetés
Séfer Tamás
Üzenetem elküldésével elfogadom a lakpont.com 
Általános Szolgáltatási Feltételeit

© 2017 lakpont.com
Minden jog fenntartva
Üzemelteti: infonet.hu [ ingatlanapp ]