
A felhasználói élmény fokozása és célzott hirdetések kiszolgálása érdekében, valamint kényelmi és statisztikai célból weboldalunk adatokat tárol a készülékén (sütiket) és webszervereken. Abban az esetben, ha hozzájárul a sütik használatához, kattintson az OK gombra. Részletesebb információt az Adatkezelési Szabályzatban talál.
ok11.9 M Ft
195 082 Ft /m2
61 m2
2
2020 m2

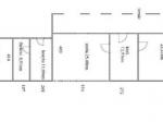
Püspökladány Hajdú-Bihar vármegye székhelyétől Debrecentől kb 50km-re található DNy-i irányba.A vizsgált ingatlan a város ÉK-i részén,családi házas környezetben,rendezett utcában van.A lakóépület 1920 körül épült,vályogfalazatú.A főépült 3helyiségből áll,2 szoba,közlekedő.A fűtést a 2 szobában gázkonvektor biztosítaná,de a közműszolgáltatás jelenleg szünetel.A főépületen statikai problémákra utaló jelek szemmel nem láthatóak,a belső helyiségek felújítást igényelnek.A tornác födémborítása hiányos.A főépület mögötti található melléképületben van a konyha és a fürdőszoba kialakítva.A konyhában jelenleg nincs vízvételi lehetőség.A fürdőszobában a falszerkezeten repedések láthatóak,gyors javítás esetén az állagmegóvás biztosítottnak tűnik.A fürdőszobában nincs fűtés,épületrészben nincs melegvízellátás.Összességében az ingatlan helyreállítása vélelmezhetően gazdaságos. Az értékelés a ****.**.**-i keltezésű tulajdonlap adatai alapján készült.Az ingatlan közterületről közvetlenül megközelíthető,és egyértelműen beazonosítható.Térképmásolati kontúrok megegyeznek a valóságos állapottal. A vizsgált ingatlan egylakásos lakóépületnek minősül, melynek beépítési módja oldalhatáron álló.
Érd.Balla László +** ** *** ****
Referencia szám: M313046
Figyelmeztetés!
A lakpont.com semmiféle felelősséget nem vállal az oldalon megjelent hirdetések tartalmáért, illetve a hirdetésekhez feltöltött képekért! Kérjük keresse a hirdetés feladóját a pontos és részletes információkért.hirdetés
Hirdető:

OTP Ingatlanpont
OTP Ingatlanpont Kft
hirdetés
hirdetés
Balla László
Üzenetem elküldésével elfogadom a lakpont.com
Általános Szolgáltatási Feltételeit

© 2017 lakpont.com
Minden jog fenntartva
Üzemelteti: infonet.hu [ ingatlanapp ]