
A felhasználói élmény fokozása és célzott hirdetések kiszolgálása érdekében, valamint kényelmi és statisztikai célból weboldalunk adatokat tárol a készülékén (sütiket) és webszervereken. Abban az esetben, ha hozzájárul a sütik használatához, kattintson az OK gombra. Részletesebb információt az Adatkezelési Szabályzatban talál.
ok54.99 M Ft
585 e Ft /m2
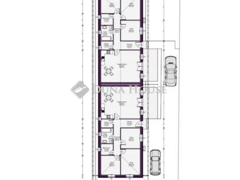
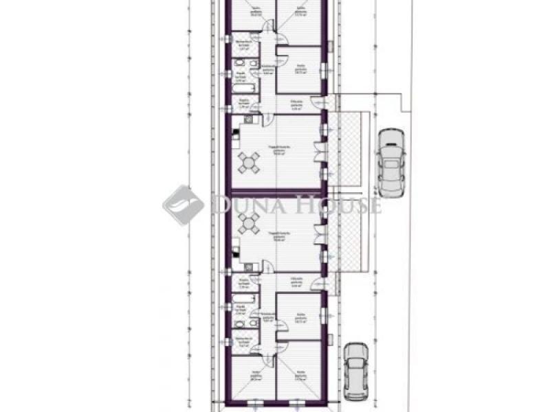
94 m2
4
802 m2

Adony csendes, mégis központi helyén kínálunk eladásra egy ikerház első és hátsó részét, mely lakásonként 94 m2-es hasznos területű, jó felosztású.A HÁTSÓ IKERHÁZ FÉL ELKELT!Mindkét ingatlan helyiségei:-Nappali+konyha-kamra-előszoba-fürdő+WC-háztartási helyiség-3 szoba-TeraszA teljes telekméret 802 m2-es ami arányosan kerül majd elosztásra, az építkezés végére. Aszfaltozott út vezet az ingatlanhoz, a környék nyugodt, jó szomszédságú.Amennyiben a hirdetésben látott tervrajz alapján a megfelelő otthonát látja, ne habozzon, hogy egy megbízható építtetővel együtt megvalósítsák.Referencia házak rendelkezésre állnak,amik megtekinthetők.A kivitelező leinformálható, megbízható.Az építkezés most kezdődik, így figyelemmel kísérheti ennek precíz elkészítési folyamatát.Az érdeklődönek teljes tervdokumentum, műszaki leírás, épületgépészeti dokumentum, energetikai tanúsítvány rendelkezésre áll.Első vételárrészlet 50%CSOK+ felvehető, Hiteltanácsadásban hitelügyintézönk rendelkezésére áll díjmentesen.Amennyiben felkeltettem érdeklődését, kérem hívjon bizalommal.
Referencia szám: HZ055761
Figyelmeztetés!
A lakpont.com semmiféle felelősséget nem vállal az oldalon megjelent hirdetések tartalmáért, illetve a hirdetésekhez feltöltött képekért! Kérjük keresse a hirdetés feladóját a pontos és részletes információkért.hirdetés
Hirdető:
hirdetés
hirdetés
Márton Andrea
Üzenetem elküldésével elfogadom a lakpont.com
Általános Szolgáltatási Feltételeit

© 2017 lakpont.com
Minden jog fenntartva
Üzemelteti: infonet.hu [ ingatlanapp ]