
A felhasználói élmény fokozása és célzott hirdetések kiszolgálása érdekében, valamint kényelmi és statisztikai célból weboldalunk adatokat tárol a készülékén (sütiket) és webszervereken. Abban az esetben, ha hozzájárul a sütik használatához, kattintson az OK gombra. Részletesebb információt az Adatkezelési Szabályzatban talál.
ok67.9 M Ft
1 281 132 Ft /m2
53 m2
2 + 1 fél

FIGYELEM! OTTHON START HITELLEL IS MEGVÁSÁROLHATÓ!
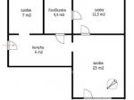
XIV. kerület, Alsórákoson, a Szikszó parkban eladó egy erkélyes, részben felújított, 2+1 félszobás lakás, rendezett, 4 emeletes társasház 1. emeletén.
Főbb jellemzők:
- Alapterület: 53 m2
- Tulajdoni lapon 2 szoba, a valóságban 2+1 félszobássá alakított
- Részben felújított, jó állapotú lakás
- Különnyíló szobák
- Kelet - nyugati tájolású, világos és jól átszellőztethető .
- A nappali erkélye parkra néz, északnyugati fekvéssel, kellemes délutáni fénnyel .
- Alacsony rezsiköltség - ideális választás költségtudatos vásárlóknak .
Műszaki adatok:
- Eredeti fa nyílászárók két szobában, máshol műanyag ablakok .
- Burkolatok: laminált parketta és járólap .
- Távfűtés egyedi méréssel, radiátoros hőleadókkal .
- Részben felújított elektromos hálózat .
- Parkolás az utcán, közterületen lehetséges .
Közlekedés, elhelyezkedés:
- A 32-es és 25-ös buszokkal gyorsan elérhető az Örs vezér tere (M2), Göncz Árpád városközpont (M3) és Újpest központ (M3) .
- A 74-es troli kb. 25 perc alatt a Belvárosba (Astoria) ér .
Ideális választás mindenkinek, aki praktikus elrendezésű, világos, jól átszellőztethető, alacsony rezsijű és csendes otthont keres kiváló közlekedéssel!
Amennyiben felkeltettem érdeklődését, hívjon bizalommal!
Kérdéseire az esti órákban és hétvégén is szívesen válaszolok.
Ha az új ingatlana megvásárlásához a jelenlegi ingatlanát el kell adnia, abban is szívesen segítünk.
M314957
Referencia szám: M314957-LP
Figyelmeztetés!
A lakpont.com semmiféle felelősséget nem vállal az oldalon megjelent hirdetések tartalmáért, illetve a hirdetésekhez feltöltött képekért! Kérjük keresse a hirdetés feladóját a pontos és részletes információkért.hirdetés
Hirdető:

OTP Ingatlanpont
Gödöllő Szabadság tér 26
hirdetés
hirdetés
Tamásné Mocsári Ildikó
Üzenetem elküldésével elfogadom a lakpont.com
Általános Szolgáltatási Feltételeit

© 2017 lakpont.com
Minden jog fenntartva
Üzemelteti: infonet.hu [ ingatlanapp ]