
A felhasználói élmény fokozása és célzott hirdetések kiszolgálása érdekében, valamint kényelmi és statisztikai célból weboldalunk adatokat tárol a készülékén (sütiket) és webszervereken. Abban az esetben, ha hozzájárul a sütik használatához, kattintson az OK gombra. Részletesebb információt az Adatkezelési Szabályzatban talál.
ok12 M Ft
139 535 Ft /m2
86 m2
3
559 m2

Csak az OTP Ingatlanpont kínálatában!
Csongrád központhoz közeli csendes utcájában eladó, egy jó szerkezetű, felújítandó családi ház!
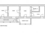
Az ingatlan kiváló lokációval rendelkezik. Az 559m2-es telken egy vegyes falazatú, felújításra szoruló lakóépület található. A 86m2 hasznos alapterületű házban 4 nagyobb helyiség, egy fürdőszoba, valamint egy nyitott és egy beépített veranda kapott helyet.
Villany, víz, csatorna közművel rendelkezik, a gáz a telken belül van, de gázóra jelenleg nincs.
A villanyhálózat részleges felújításon esett át, befejezésre vár.
A szobák betonosak.
Az ingatlan per, teher, és igénymentes.
Amennyiben felkeltettem érdeklődését, hívjon bizalommal!
Az OTP Ingatlanpont teljeskörű ügyintézéssel áll az eladók és vevők rendelkezésére. A kínálatunkból választott ingatlan finanszírozásához kedvezményes hitelkonstrukciót biztosítunk. Az OTP Banknál elérhető Babaváró, Otthon Start Hitelprogram, falusi CSOK, CSOK Plusz hitel és egyéb kölcsönök intézését díjmentesen vállaljuk. Az adásvételi szerződés megkötéséhez igény szerint ügyvédet biztosítunk. Irodáink Szentes, Petőfi utca 12. a buszmegálló felől, és Csongrád, Fő utca 54. szám alatt várjuk a személyes érdeklődőket. Válasszuk ki együtt az Önnek legmegfelelőbb ajánlatot banki sorban állás nélkül!
Referencia szám: M313890-LP
Figyelmeztetés!
A lakpont.com semmiféle felelősséget nem vállal az oldalon megjelent hirdetések tartalmáért, illetve a hirdetésekhez feltöltött képekért! Kérjük keresse a hirdetés feladóját a pontos és részletes információkért.hirdetés
Hirdető:
Csongrád Fő utca 54 - OTP Ingatlanpont Iroda
hirdetés
hirdetés
Berényiné Annus Krisztina
Üzenetem elküldésével elfogadom a lakpont.com
Általános Szolgáltatási Feltételeit

© 2017 lakpont.com
Minden jog fenntartva
Üzemelteti: infonet.hu [ ingatlanapp ]