
A felhasználói élmény fokozása és célzott hirdetések kiszolgálása érdekében, valamint kényelmi és statisztikai célból weboldalunk adatokat tárol a készülékén (sütiket) és webszervereken. Abban az esetben, ha hozzájárul a sütik használatához, kattintson az OK gombra. Részletesebb információt az Adatkezelési Szabályzatban talál.
ok168 M Ft
1 235 294 Ft /m2
136 m2
5

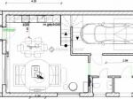
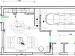
Felsőrákos egyik legkedveltebb részén kínálunk Önöknek egy négylakásos társasházban lévő lakásokat önálló kertrésszel.A jövendőbeli tulajdonos nem csak egy lakást vásárol, hanem bekapcsolódik egy olyan környezetbe, ahol a luxus és a környezettudatosság tökéletes harmóniában van. Ne hagyja ki ezt a páratlan lehetőséget, legyen részese Ön is ennek az exkluzív közösségnek még ma!Az ingatlan különlegessége továbbá, hogy a belső kialakítás során a potenciális vásárló igényeinek megfelelően, egy belsőépítész által tervezett terv és részletes konszignációs lista áll rendelkezésre, lehetővé téve a személyre szabott otthont. Az épület kertre néző ablakaival és napfényes tereivel egy oázis nyugalmát hozza el a város szívébe.Eladó egy lenyűgöző újépítésű ingatlan *** *** *** HUF áron, amely egy négy lakásos társasház része. Az ingatlan nem mindennapi luxust kínál új tulajdonosának azzal, hogy egy saját kertrész és önálló garázs is tartozik hozzá. Az épület, melynek szerkezete tégla, 2025-ben épült, és várhatóan 2025 novemberében kerül átadásra. Kivételes figyelmet fordítottunk az ingatlan energiahatékonyságára; a modern hőszivattyús mennyezeti hűtés-fűtési rendszer, a padlófűtés, valamint a 4,3 kW teljesítményű napelemes rendszer garantálja a fenntarthatóságot és a környezettudatos életvitelt.
Érdeklődni: Szabó Róbert, mobil: +**-**-**-***-**
Referencia szám: LK097579
Figyelmeztetés!
A lakpont.com semmiféle felelősséget nem vállal az oldalon megjelent hirdetések tartalmáért, illetve a hirdetésekhez feltöltött képekért! Kérjük keresse a hirdetés feladóját a pontos és részletes információkért.hirdetés
Hirdető:

Duna House
Duna House Pécel
hirdetés
hirdetés
Szabó Róbert
Üzenetem elküldésével elfogadom a lakpont.com
Általános Szolgáltatási Feltételeit

© 2017 lakpont.com
Minden jog fenntartva
Üzemelteti: infonet.hu [ ingatlanapp ]