
A felhasználói élmény fokozása és célzott hirdetések kiszolgálása érdekében, valamint kényelmi és statisztikai célból weboldalunk adatokat tárol a készülékén (sütiket) és webszervereken. Abban az esetben, ha hozzájárul a sütik használatához, kattintson az OK gombra. Részletesebb információt az Adatkezelési Szabályzatban talál.
ok99.99 M Ft
1 333 200 Ft /m2
75 m2
3

Megvételre kínálunk XVIII. kerület Bokaytelepen egy épülő 4 lakásos házban elhelyezkedő lakást!
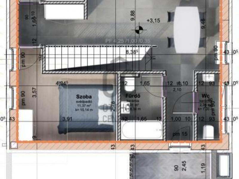
A nappali plusz két hálószobás, fürdővel és külön WC-vel rendelkező lakás minden kényelmet biztosít az itt élők számára.
Két garázs és két fedett beálló lesz kialakítva, opcionális lehetőséggel vásárolható:
-garázs 5,5 Mft
-gépkocsi beálló 1,5 Mft
Tervezett átadás: 2026 második negyedév.
Az energetika besorolása A+.
Fűtés, hűtés, melegvíz:
Központi levegő–víz hőszivattyús rendszer szolgáltatja a fűtést, hűtést és a használati melegvizet.
Padlófűtés a teljes lakótérben, valamint fan-coil hűtés/fűtés a nappaliban és emeleti szobákban.
Okos vezérlés előkészítve:
Igény esetén helyiségenkénti termosztátos vezérlés és okosotthon rendszer is kialakítható.
Szerkezeti és műszaki adatok:
Monolit vasbeton lemezalap – biztos, mozgásálló alapozás.
Külső falak: 30 cm vastag Leier hőszigetelő tégla.
Válaszfalak: Kiemelkedő hangszigetelésű Silka mészhomok tégla.
Födémszerkezet: Hang- és tűzgátló tulajdonságokkal, statikai tervek szerint.
Homlokzati hőszigetelés: 12 cm vastag EPS szigetelés.
Tető monolit szerkezetű, szigetelés: 20 cm vastag üveggyapot, extra hőmegtartás érdekében.
Szigetelés: 20 cm vastag üveggyapot.
Nyílászárók és árnyékolástechnika:
Biztonságos, többpontos záródású bejárati ajtók (MABISZ minősítéssel).
Energiahatékony műanyag ablakok, belső műanyag és külső alumínium párkányokkal.
Vakolható redőnyszekrények, opcionálisan hőszigetelt alumínium redőnyökkel és szúnyoghálókkal
Rendezett, parkosított saját kert, ideális családi programokhoz, pihenéshez vagy konyhakert kialakításához.
A kert rendezése a vételár részét képezi.
Garázs és parkolás:
Minden lakáshoz saját integrált garázs tartozik, közvetlen lakótéri kapcsolattal.
A lakások a CSOK+ feltételeinek megfelelnek.
Amennyiben kérdése lenne, vagy szeretné megtekinteni személyesen is, kérem hívjon bizalommal, várom.
Teljeskörű pénzügyi és jogi háttér-szolgáltatással várom kedves ügyfeleimet.
Referencia szám: U0048727
Figyelmeztetés!
A lakpont.com semmiféle felelősséget nem vállal az oldalon megjelent hirdetések tartalmáért, illetve a hirdetésekhez feltöltött képekért! Kérjük keresse a hirdetés feladóját a pontos és részletes információkért.hirdetés
Hirdető:
Otthon Centrum
XIX. kerület - Corvin körút
hirdetés
hirdetés
Fejes Hajnalka
Üzenetem elküldésével elfogadom a lakpont.com
Általános Szolgáltatási Feltételeit

© 2017 lakpont.com
Minden jog fenntartva
Üzemelteti: infonet.hu [ ingatlanapp ]