
A felhasználói élmény fokozása és célzott hirdetések kiszolgálása érdekében, valamint kényelmi és statisztikai célból weboldalunk adatokat tárol a készülékén (sütiket) és webszervereken. Abban az esetben, ha hozzájárul a sütik használatához, kattintson az OK gombra. Részletesebb információt az Adatkezelési Szabályzatban talál.
ok77.4 M Ft
1 433 333 Ft /m2
54 m2
3

ÖRÖK PANORÁMÁS ÚJ Építésű, NAPELEMES LAKÁSOK!
Vácon a Bácska dűlőben kínálunk eladásra teraszos, kertkapcsolatos lakásokat, a Pilis hegységre és a szentendrei szigetre néző panorámával.
Az épület dny-i tájolásának köszönhetően a lakások rendkívül világosak, benapozottak.
Magas műszaki tartalom, igényes kivitelezés referenciákkal bíró kivitelezőtől.
A korszerű technológiának és a napelemes rendszernek köszönhetően egy alacsony
költségen fenntartható értékálló ingatlant vásárolhatunk.
A három szintes négy lakásos társasház egy zárt telken kerül kialakításra.
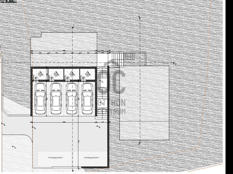
A garázs szinten fedett kocsibeálló és a hozzájuk tartozó tároló opcionálisan megvásárolható.
Valamennyi lakáshoz 1-1 nyitott udvari kocsibeálló tartozik.
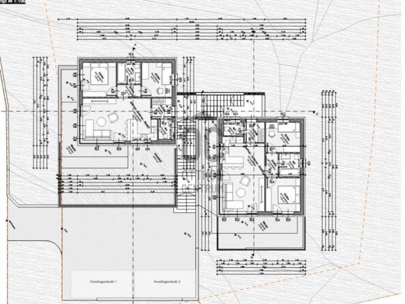
Az A és B épületrészt egy külső lépcsősor választ el egymástól. Mindkét épületben, egy földszinti és egy emeleti lakás kap majd helyet.
GARÁZSZSZINT:
Az A épület garázsszintjén négy darab garázs és a hozzájuk tartozó tárolók kerülnek
majd kialakításra. Garázs+ tároló 10 M ft ellenében megvásárolható.
A ÉPÜLET:
A1 földszinti lakás 54 nm, 2 háló+ nappali, fürdő+ wc, wc+ mosdó, közlekedő, 23,8 nm fedett terasz kertkapcsolattal, udvari kocsibeálló.
A2 emeleti lakás 54 nm, 2 háló+ nappali, fürdő+ wc, wc+ mosdó, közlekedő, 12,2 nm fedett terasz, udvari kocsibeálló.
B ÉPÜLET:
B1 földszinti lakás 54 nm, 2 háló+nappali, fürdő+wc, wc+mosdó, közlekedő
22,9 nm fedett terasz kertkapcsolattal, udvari kocsibeálló.
B2 emeleti lakás 54 nm, 2 háló+nappali, fürdő+wc, wc+mosdó, közlekedő
14,6 nm fedett terasz, udvari kocsibeálló.
Jelen hirdetés azB1-jelű jobb oldali földszinti lakás leírása.
A lakások tervezett átadása 2026 nyara.
MŰSZAKI TARTALOM:
Vasbeton sávalap. Teherhordó falazat 25 cm-es Porotherm falazóelem 15 cm-es homlokzati, szigeteléssel. Monolit vasbeton födém. Korcolt lemez fedés. Műanyag 3 rétegű, nyílászárók szúnyoghálóval redőnnyel szerelve.
Hőszivattyús fűtés és melegvízellátás. Padlófűtés és mennyezethűtés.
5 KW napelemes rendszer tároló akkumulátorral.
Amivel segíteni tudjuk az Ön ingatlanvásárlását:
-ingyenes, bankfüggetlen hitelügyintézés
-jogi háttér
-földhivatali ügyintézés
-energetikai tanúsítvány készítése
-értékbecslés
Amennyiben a hirdetés felkeltette érdeklődését kérem forduljon hozzám bizalommal.
Referencia szám: U0048183
Figyelmeztetés!
A lakpont.com semmiféle felelősséget nem vállal az oldalon megjelent hirdetések tartalmáért, illetve a hirdetésekhez feltöltött képekért! Kérjük keresse a hirdetés feladóját a pontos és részletes információkért.hirdetés
Hirdető:
Otthon Centrum
XIX. kerület - Corvin körút
hirdetés
hirdetés
Fejes Hajnalka
Üzenetem elküldésével elfogadom a lakpont.com
Általános Szolgáltatási Feltételeit

© 2017 lakpont.com
Minden jog fenntartva
Üzemelteti: infonet.hu [ ingatlanapp ]