
A felhasználói élmény fokozása és célzott hirdetések kiszolgálása érdekében, valamint kényelmi és statisztikai célból weboldalunk adatokat tárol a készülékén (sütiket) és webszervereken. Abban az esetben, ha hozzájárul a sütik használatához, kattintson az OK gombra. Részletesebb információt az Adatkezelési Szabályzatban talál.
ok95 M Ft
1 759 259 Ft /m2
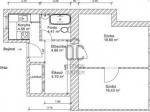
54 m2
2

2 szobás lakás Kelenföldön
Fedezze fel Budapest 11. kerületének kiváló lokációval rendelkező ingatlanát, amely ideális választás lehet akár saját otthonának, akár befektetési céllal.
Ez a 54 négyzetméteres, 2 szobás lakás Kelenföld szívében helyezkedik el. A lakás jó állapotú, azonnal birtokba vehető. A távfűtés biztosítja a kellemes hőmérsékletet a hideg hónapokban, és az egyedi mérés lehetősége lehetővé teszi a költségek hatékonyabb nyomon követését.
A környék ellátottsága kiváló, a közeli üzletek, éttermek és szolgáltatások mindössze pár perc sétára találhatók.
Az ingatlan tehermentes, így a vásárlás folyamata gyorsan és zökkenőmentesen lebonyolítható.
Ha bármilyen kérdése van az ingatlannal kapcsolatban, vagy szeretné megtekinteni a lakást, ne habozzon keresni minket bizalommal. Szakértőink készséggel állnak rendelkezésére, hogy segítsenek Önnek a legjobb döntés meghozatalában.
Az ingatlanpiac dinamikus, és ez a nagyszerű ajánlat nem sokáig lesz elérhető, ezért érdemes mielőbb lépni!
Figyelmeztetés!
A lakpont.com semmiféle felelősséget nem vállal az oldalon megjelent hirdetések tartalmáért, illetve a hirdetésekhez feltöltött képekért! Kérjük keresse a hirdetés feladóját a pontos és részletes információkért.hirdetés
Hirdető:
XI. kerület - Bicskei utca
hirdetés
hirdetés
Wittmann Beáta
Üzenetem elküldésével elfogadom a lakpont.com
Általános Szolgáltatási Feltételeit

© 2017 lakpont.com
Minden jog fenntartva
Üzemelteti: infonet.hu [ ingatlanapp ]