
A felhasználói élmény fokozása és célzott hirdetések kiszolgálása érdekében, valamint kényelmi és statisztikai célból weboldalunk adatokat tárol a készülékén (sütiket) és webszervereken. Abban az esetben, ha hozzájárul a sütik használatához, kattintson az OK gombra. Részletesebb információt az Adatkezelési Szabályzatban talál.
ok10.5 M Ft
194 444 Ft /m2
54 m2
2

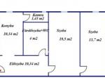
Eladó 1. emeleti, 54 nm-es, 2 szobás lakás Miskolc-Perecesen a Debreczeni Márton téren 2 szintes épületben közvetlenül az erdő mellett.
Keleti tájolás: A tágas, egymásból nyíló szobákba és a konyhába egész délelőtt besüt a nap
Felújítási potenciál: Engedje szabadjára a fantáziáját! Ez a lakás kiváló alapot biztosít ahhoz, hogy megálmodja és megvalósítsa saját, egyedi otthonát. A műanyag nyílászárók és az új bejárati ajtó már adott, így a nagyobb költségektől kímélheti meg magát. Praktikus elrendezés: A két tágas szoba, a kamrával kiegészített konyha és a gázkonvektoros fűtés (kiegészítésként cserépkályha is található, amely felújítás után használható lehet) mind a kényelmes életvitelhez járul hozzá.
A fürdőszobában a meleg vizet bojler biztosítja.
A közös költség 9.500 Ft.
További információért és megtekintésért hívjon a hirdetésben szereplő telefonszámon!
Referencia szám: M308760
Figyelmeztetés!
A lakpont.com semmiféle felelősséget nem vállal az oldalon megjelent hirdetések tartalmáért, illetve a hirdetésekhez feltöltött képekért! Kérjük keresse a hirdetés feladóját a pontos és részletes információkért.hirdetés
Hirdető:

OTP Ingatlanpont
Miskolc Corvin utca 1-3
hirdetés
hirdetés
dr. Rohács Andrea
Üzenetem elküldésével elfogadom a lakpont.com
Általános Szolgáltatási Feltételeit

© 2017 lakpont.com
Minden jog fenntartva
Üzemelteti: infonet.hu [ ingatlanapp ]