
137 011 500 Ft
1 756 558 Ft /m2
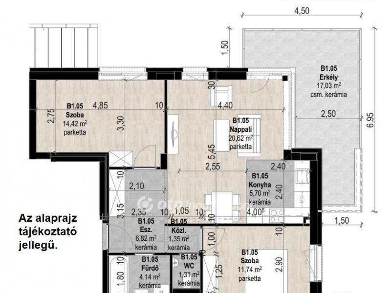
78 m2
4

!!!FANTASZTIKUS ÁRON ÚJ ÉPÍTÉSŰ LAKÁSOK MÁR LEKÖTHETŐEK ZUGLÓ KERTVÁROSÁBAN!!! KÖLTÖZZÖN ZÖLDBE! ÚJ ÉPÍTÉSŰ OTTHONOK VALÓBAN ELÉRHETŐ ÁRON!!!! Zuglóban, csendes utcában parkosított telken kínálunk energiatakarékos otthonokat. A projekt 2 igényes, látványos épületben, épületenként 22 lakással, 4 emeleten valósul meg. Minden ingatlan 1,2 illetve 3 terasszal rendelkezik, a földszinti lakásokhoz magánkert tartozik. Az épületek közötti részen sétáló utcát és zöld parkot létesítenek, füvesítéssel (fűmag szórással), automata öntözőrendszerrel. Teremgarázs opcionálisan megvásárolható. Ezeket a lakásokat azoknak ajánljuk, akiknek fontos az energiatakarékosság és a környezetkímélő élet, a jó megközelíthetőség és a zöld környezet. ENERGIATAKARÉKOS OTTHONOK, KIVÁLÓ BÉRBEADHATÓSÁG, ZÖLDÖVEZET, MENNYEZETI HŰTÉS-FŰTÉS.
Az átadás 2026 nyár.
Az OTP Ingatlanpont, mint egyetlen közvetlen banki hátterű ingatlanközvetítő társaság teljes körű ügyintézéssel áll az eladók és a vevők rendelkezésére! A kínálatunkból választott ingatlan finanszírozásához minősített fogyasztóbarát, piaci és kedvezményes hitel- és lízingkonstrukciókat kínálunk (lakásvásárlási hitel, CSOK plusz, szabad felhasználású hitel, babaváró hitel, céges hitelek, pályázatok). Az adásvételi szerződés megkötéséhez igény szerint megbízható ügyvédi közreműködést biztosítunk, és segítséget nyújtunk az adásvételhez kapcsolódó egyéb ügyek intézéséhez.
Ha az új ingatlana megvásárlásához a jelenlegi ingatlanát el kell adnia, abban is szívesen segítünk.
M297655
Referencia szám: M297655-LP
Figyelmeztetés!
A lakpont.com semmiféle felelősséget nem vállal az oldalon megjelent hirdetések tartalmáért, illetve a hirdetésekhez feltöltött képekért! Kérjük keresse a hirdetés feladóját a pontos és részletes információkért.hirdetés
Hirdető:

OTP Ingatlanpont
Budapest XIII. kerület Lehel utca 50
hirdetés
hirdetés
Takács Zsuzsanna
Üzenetem elküldésével elfogadom a lakpont.com
Általános Szolgáltatási Feltételeit

© 2017 lakpont.com
Minden jog fenntartva
Üzemelteti: infonet.hu [ ingatlanapp ]