
89.25 M Ft
1 622 727 Ft /m2
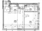
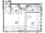
55 m2
2

14. KERÜLET FREKVENTÁL RÉSZÉN ELADÓ FIATALOS ÉS MODERN LAKÁSOK AZ OTP INGATLANPONT KÍNÁLATÁBAN!
Zugló frekventált részén, jó közlekedés mellett, kínálunk újépítésű lakásokat egy rendkívül kellemes megjelenésű épületegyüttesben.
A jól átgondolt tervezés eredményeként az épületben, praktikus helyiségek, világos és kényelmes életterek kerültek kialakításra.
Minden lakás megtervezésénél nagy figyelmet fordítottak a napfényes és élhető elrendezésre. Ezen felül az épületek felsőbb szinti lakásainak többségéhez nagyméretű teraszok, míg a földszinti és részben az első emelti lakásokhoz magánhasználatú kertrészek kapcsolódnak.
A lakás kínálat változó, a kisebb alapterületű stúdió lakásoktól az akár 1-2-3 hálószobával rendelkező otthonok széles választéka elérhető.
A kínálatnak köszönhetően az első lakást kereső fiatalok, a CSOK+ nyújtotta lehetőségeket kihasználni szándékozó családosok, vagy akár a befektetési céllal vásárlók is megtalálhatják álmaik otthonát. Az épület tervezett átadása 2025. III NEGYEDÉV.
- A fűtési és hűtési energiát környezetbarát, levegős hőszivattyúrendszer biztosítja. A hőleadók mennyezetbe épített (szabad szemmel nem látható) hűtő-, fűtőrendszerek, melyekkel a helyiségek hőmérséklete egyedileg szabályozható, akár intelligens/okos hálózat részeként. A meleg víz előállításáról a központi gépészeti helyiségekben elhelyezett fali gázkazánok gondoskodnak. - Egyéb kényelmi szempontokat is figyelembe véve a következő extrák kerültek kialakításra: beépített redőnyök elektromos előkészítése, kerékpártároló, elektromosautó-töltési lehetőség (külön kérés és felár ellenében), valamint okosotthon és kamerarendszer garantálja a biztonságot és a kényelmet. - Teremgarázs biztosítja a kényelmes parkolást, ahol különböző méretű gépkocsibeállók közül választhat. Emellett külön bejáratú tárolók vásárlása is lehetséges. - Lakásainkhoz választható burkolatok és szaniterek tartoznak, így teljesen személyre szabhatja új otthonát. Ne hagyja ki ezt a páratlan lehetőséget, hogy egy kiváló infrastruktúrával rendelkező, modern és fiatalos lakóparkban találja meg álmai otthonát! Vegye fel velem a kapcsolatot és tekintse meg személyesen az eladó lakásokat Zugló legjobb részén - várom megtisztelő hívását! M284079
Referencia szám: M284079
Figyelmeztetés!
A lakpont.com semmiféle felelősséget nem vállal az oldalon megjelent hirdetések tartalmáért, illetve a hirdetésekhez feltöltött képekért! Kérjük keresse a hirdetés feladóját a pontos és részletes információkért.hirdetés
Hirdető:

OTP Ingatlanpont
Budapest XIV. kerület Vezér utca 147
hirdetés
hirdetés
Megyesi Gabriella
Üzenetem elküldésével elfogadom a lakpont.com
Általános Szolgáltatási Feltételeit

© 2017 lakpont.com
Minden jog fenntartva
Üzemelteti: infonet.hu [ ingatlanapp ]