
39.99 M Ft
499 875 Ft /m2
80 m2
2 + 1 fél
1549 m2

Eladó családi ház Pázmándon, két külön bejáratú lakrésszel, hatalmas kerttel!
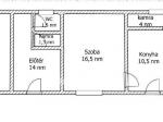
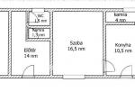
Pázmánd központi részén eladó egy 80 nm hasznos alapterületű, vályogból épült családi ház, amely két külön bejáratú lakrészből áll. Az ingatlan 3 szobával és nagy belmagassággal rendelkezik, így tágas és világos életteret biztosít.
Fűtést gázkonvektorok biztosítják. A bejárati ajjtók és néhány ablak már ki lett cserélve modern műanyagra.
A 1549 nm-es telek rengeteg lehetőséget kínál: kertészkedésre, állattartásra vagy akár további építkezésre is alkalmas. A ház folytatásaként tároló és kamra található, az udvaron pedig egy fúrt kút segíti a locsolást.
A környék csendes és rendezett, a szomszédok barátságosak. Az ingatlan ideális választás azok számára, akik vidéki nyugalmat keresnek, mégis elérhető távolságban szeretnének maradni a városi infrastruktúrától.
Irányár: ** *** ***.- Forint
A kínálatunkból választott ingatlan finanszírozásához kedvezményes hitelkonstrukciókat kínálunk. Az adásvételi szerződés megkötéséhez igény szerint megbízható ügyvédi közreműködést biztosítunk, és segítséget nyújtunk az adásvételhez kapcsolódó ügyek intézéséhez.
Amennyiben felkeltette érdeklődését, szívesen állok rendelkezésére, a hét minden napján!
Figyelmeztetés!
A lakpont.com semmiféle felelősséget nem vállal az oldalon megjelent hirdetések tartalmáért, illetve a hirdetésekhez feltöltött képekért! Kérjük keresse a hirdetés feladóját a pontos és részletes információkért.hirdetés
Hirdető:

OTP Ingatlanpont
Székesfehérvár Palotai út 8
hirdetés
hirdetés
Darnai Henrietta
Üzenetem elküldésével elfogadom a lakpont.com
Általános Szolgáltatási Feltételeit

© 2017 lakpont.com
Minden jog fenntartva
Üzemelteti: infonet.hu [ ingatlanapp ]