
A felhasználói élmény fokozása és célzott hirdetések kiszolgálása érdekében, valamint kényelmi és statisztikai célból weboldalunk adatokat tárol a készülékén (sütiket) és webszervereken. Abban az esetben, ha hozzájárul a sütik használatához, kattintson az OK gombra. Részletesebb információt az Adatkezelési Szabályzatban talál.
ok45 M Ft
692 308 Ft /m2
65 m2
2

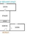
Teljeskörűen FELÚJÍTOTT LAKÁS UDVARI KAPCSOLATTAL eladó, a XVI. kerületi Rákosszentmihályon (Sashalom határánál). 2023-ban újonnan került kialakításra ez a két szobás lakás, ami egy 16 lakásos, egy emeletes épület tetőtérében helyezkedik el, közös udvarhasználati lehetőséggel. Az épület teljes körű felújításon esett át, a fő tartószerkezeteket leszámítva. A felújítás során a lakás új vezetékeket, szigetelést, nyílászárókat, burkolatokat és elektromos fűtést kapott.
A vételár tartalmaz egy nyílt autóbeálló helyet is az udvaron, valamint a közterületen is díjmentes parkolásra van lehetőség.
Az ingatlan lokációja kitűnő, kiserdő közelében. Zugló közvetlen szomszédságában, jó tömegközlekedés mellett.
Készpénzes vásárlás lehetséges!
Az adásvételi szerződés megkötéséhez igény szerint megbízható ügyvédi közreműködést biztosítunk, és segítséget nyújtunk az adásvételhez kapcsolódó ügyek intézéséhez.
Érdeklődés esetén kérem, hivatkozzon az M294727-es azonosítási számra!
******** Ft
Referencia szám: M294727
Figyelmeztetés!
A lakpont.com semmiféle felelősséget nem vállal az oldalon megjelent hirdetések tartalmáért, illetve a hirdetésekhez feltöltött képekért! Kérjük keresse a hirdetés feladóját a pontos és részletes információkért.hirdetés
Hirdető:

OTP Ingatlanpont
Budapest VII. kerület Garay tér 15
hirdetés
hirdetés
Sasaran-Kereki Katalin
Üzenetem elküldésével elfogadom a lakpont.com
Általános Szolgáltatási Feltételeit

© 2017 lakpont.com
Minden jog fenntartva
Üzemelteti: infonet.hu [ ingatlanapp ]