
A felhasználói élmény fokozása és célzott hirdetések kiszolgálása érdekében, valamint kényelmi és statisztikai célból weboldalunk adatokat tárol a készülékén (sütiket) és webszervereken. Abban az esetben, ha hozzájárul a sütik használatához, kattintson az OK gombra. Részletesebb információt az Adatkezelési Szabályzatban talál.
ok34.9 M Ft
447 436 Ft /m2
78 m2
2 + 1 fél
400 m2

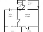
Mikepércs központi részén eladó egy sarki telken található, 78m2 családi ház.
A ház a 70-s években épült, vegyes falazattal, pala fedéssel, itt 2+1 szoba, nappali, konyha és fürdőszoba található.
Gázfűtéssel rendelkezik, illetve egy tárolásra alkalmas melléképülethez kapcsolódik.
Tetszés szerint modernizálható de nagyon sok lehetőség van benne. Elhelyezkedésének köszönhetően kiválóan alkalmas családok számára is, vagy akár vállalkozásra is kimondottan jó adottságokkal rendelkezik. Minden szükséges létesítmény, boltok, orvosi rendelő, busz állomás, gyógyszertár, posta, 5 perc alatt sétálva is elérhető.
További információért hívjon bizalommal akár hétvégén is. Megtekintésre telefonos egyeztetés alapján van lehetőség.
Kedvezményes kamatozású lakásvásárlási és felújítási hitelek az OTP hátterével irodánkban, valamint teljeskörű adásvétellel kapcsolatos ügyintézés.
Referenciaszám: M294759
Érd.: OTP Ingatlanpont Debrecen +**-**-***-****
Referencia szám: M294759
Figyelmeztetés!
A lakpont.com semmiféle felelősséget nem vállal az oldalon megjelent hirdetések tartalmáért, illetve a hirdetésekhez feltöltött képekért! Kérjük keresse a hirdetés feladóját a pontos és részletes információkért.hirdetés
Hirdető:

OTP Ingatlanpont
Debrecen Miklós utca 5-13
hirdetés
hirdetés
Nagy Enikő Judit
Üzenetem elküldésével elfogadom a lakpont.com
Általános Szolgáltatási Feltételeit

© 2017 lakpont.com
Minden jog fenntartva
Üzemelteti: infonet.hu [ ingatlanapp ]