
A felhasználói élmény fokozása és célzott hirdetések kiszolgálása érdekében, valamint kényelmi és statisztikai célból weboldalunk adatokat tárol a készülékén (sütiket) és webszervereken. Abban az esetben, ha hozzájárul a sütik használatához, kattintson az OK gombra. Részletesebb információt az Adatkezelési Szabályzatban talál.
ok220 M Ft
1 089 109 Ft /m2
202 m2
4

*** ÚJ ÉPÍTÉSŰ, napfényes, PANORÁMÁS LAKÁSOK Ürömhegyen ***
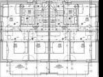
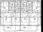
Megvételre kínálunk a III. kerület ZÖLDÖVEZETében, hegyoldalban, természet közelében, 8 DARAB csodálatos panorámával rendelkező, modern, HŐSZIVATTYÚS lakást. Az építés során 4 darab ház készült el, épületenként 2-2 lakással. A lakásokhoz saját kertrész és garázs is tartozik, nappali plusz 3 egész szobával és két fürdőszobával, mosdóval rendelkeznek.
Elosztás:
pince: garázs
földszint: nappali,konyha,étkező, kamra, gépészet és fürdő illetve egy panorámás terasz
emelet: 3 hálószoba,fürdő és szintén panorámás terasz.
Szerkezet:
Az alapozás monolit vasbeton lemezalap, a földszint és emelet rész alatt lelépcsőzött monolit sávalap, illetve bekötött vasbeton alapgerenda szerkezetek. A pince falazat a lemezalapról indított, azzal vasalással összekötött vízzáró monolit vasbeton szerkezet, tartószerkezeti terv szerint. A földszinten általánosan 20cm monolit vasbeton fal, az emeleten pedig vázkerámia falazóblokkal kialakított 30 cm vastag falazat készül. A vasbeton fal előtt 20cm EPS, a falazott fal előtt 15 cm EPS hőszigetelés készül. A válaszfalak 10cm vastag vázkerámia szerkezetek. A födémek helyszíni monolit vasbeton szerkezetek, a pince fölött 25cm, a földszint és emelet fölött 22 cm vastagságban. Az erkélylemez 22cm vastag, a födémszerkezethez konzolosan hőhíd megszakítókkal csatlakoztatott vasbeton lemezkonzol.
Nyílászárók
Műanyag 3 rtg. hőszigetelő üvegezésű bukó-nyíló és toló rendszerű nyílászárók. A földszinti mosdó, valamint a bejárati ajtó kivételével a nyílászárók rejtett redőnyszekrénnyel, valamint a nem földi érő teraszajtók lehúzható szúnyoghálóval szereltek.
Hideg-meleg burkolatok 10.000ft/nm-ig választhatók.
Belső ajtók 100.000ft/db-ig választhatók.
Szaniter csomagok: 800.000ft/lakás választható. Elvárt minimum minőségű szaniterek: Roca, Jika, Ravak, mosdók, kézmosók, wc csészék stb.
A lakásban HONEYWELL MINIPLUS FK06 típusú központi ivóvíz finomszűrők kerülnek beépítésre.
A tetőn napelem rendszer kerül kiépítésre, valamint az öntözőrendszer is kivitelezésre kerül lakásonként.
A lakások fűtési, hűtési és használati meleg-víz igényének ellátását levegő-víz hőszivattyú biztosítja, mennyezet hűtés-fűtés, illetve padlófűtés kivitelezéssel.
A lakásokban WOLF CWL-180 Excellent típusú mesterséges szellőztető berendezés kerül beépítésre.
Lakásonként normál hálózaton a tervezett villamos csatlakozási teljesítmény 3x20 A.
Internet kábelezés, riasztó és kamera rendszer előkészítést tartalmazza a vételár.
Átadás várható időpontja: 2024. IV. negyedév
Amennyiben felkeltette érdeklődését az ingatlan keressen bizalommal a hét bármely napján!
Minden egyéb ügyintézéssel kapcsolatban Hitel ,Babaváró, ügyvéd, közjegyző is segítséget nyújtunk.
Referencia szám: M283922
********* Ft
Referencia szám: M283922
Figyelmeztetés!
A lakpont.com semmiféle felelősséget nem vállal az oldalon megjelent hirdetések tartalmáért, illetve a hirdetésekhez feltöltött képekért! Kérjük keresse a hirdetés feladóját a pontos és részletes információkért.hirdetés
Hirdető:

OTP Ingatlanpont
Budapest VII. kerület Garay tér 15
hirdetés
hirdetés
Sasaran-Kereki Katalin
Üzenetem elküldésével elfogadom a lakpont.com
Általános Szolgáltatási Feltételeit

© 2017 lakpont.com
Minden jog fenntartva
Üzemelteti: infonet.hu [ ingatlanapp ]