
224 M Ft
1 108 911 Ft /m2
202 m2
4

*** ÚJ ÉPÍTÉSŰ, napfényes, PANORÁMÁS LAKÁSOK Ürömhegyen ***
Megvételre kínálunk a III. kerület ZÖLD ÖVEZETében, hegyoldalban, természet közelében, 8 DARAB csodálatos panorámával rendelkező, modern, HŐSZIVATTYÚS lakást. Az építés során 4 darab ház készült el, épületenként 2-2 lakással. A lakásokhoz saját kertrész és garázs is tartozik, nappali plusz 3 egész szobával és két fürdőszobával, mosdóval rendelkeznek.
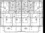
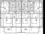
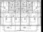
Elosztás:
pince: garázs
földszint: nappali,konyha,étkező, kamra, gépészet és fürdő illetve egy panorámás terasz
emelet: 3 hálószoba,fürdő és szintén panorámás terasz.
Szerkezet:
Az alapozás monolit vasbeton lemezalap, a földszint és emelet rész alatt lelépcsőzött monolit sávalap, illetve bekötött vasbeton alapgerenda szerkezetek. A pince falazat a lemezalapról indított, azzal vasalással összekötött vízzáró monolit vasbeton szerkezet, tartószerkezeti terv szerint. A földszinten általánosan 20cm monolit vasbeton fal, az emeleten pedig vázkerámia falazóblokkal kialakított 30 cm vastag falazat készül. A vasbeton fal előtt 20cm EPS, a falazott fal előtt 15 cm EPS hőszigetelés készül. A válaszfalak 10cm vastag vázkerámia szerkezetek. A födémek helyszíni monolit vasbeton szerkezetek, a pince fölött 25cm, a földszint és emelet fölött 22 cm vastagságban. Az erkélylemez 22cm vastag, a födémszerkezethez konzolosan hőhíd megszakítókkal csatlakoztatott vasbeton lemezkonzol.
Nyílászárók
Műanyag 3 rtg. hőszigetelő üvegezésű bukó-nyíló és toló rendszerű nyílászárók. A földszinti mosdó, valamint a bejárati ajtó kivételével a nyílászárók rejtett redőnyszekrénnyel, valamint a nem földi érő teraszajtók lehúzható szúnyoghálóval szereltek.
Hideg-meleg burkolatok 10.000 Ft/nm-ig választhatók.
Belső ajtók 100.000 Ft/db-ig választhatók.
Szaniter csomagok: 800.000 Ft/lakás választható. Elvárt minimum minőségű szaniterek: Roca, Jika, Ravak, mosdók, kézmosók, WC csészék stb.
A lakásban HONEYWELL MINIPLUS FK06 típusú központi ivóvíz finomszűrők kerülnek beépítésre.
A tetőn napelem rendszert, valamint az öntözőrendszert építenek ki lakásonként.
A lakások fűtési, hűtési és használati meleg-víz igényének ellátását levegő-víz hőszivattyú biztosítja, mennyezet hűtés-fűtés, illetve padlófűtés kivitelezéssel.
A lakásokban WOLF CWL-180 Excellent típusú mesterséges szellőztető berendezés kerül beépítésre.
Lakásonként normál hálózaton a tervezett villamos csatlakozási teljesítmény 3x20 A.
Internet kábelezés, riasztó és kamera rendszer előkészítést tartalmazza a vételár.
Átadás várható időpontja: 2024. IV. negyedév
Az OTP Ingatlanpont, mint egyetlen közvetlen banki hátterű ingatlanközvetítő társaság teljes körű ügyintézéssel áll az eladók és a vevők rendelkezésére! A kínálatunkból választott ingatlan finanszírozásához minősített fogyasztóbarát, piaci és kedvezményes hitel- és lízingkonstrukciókat kínálunk (lakásvásárlási hitel, CSOK plusz, szabad felhasználású hitel, babaváró hitel, céges hitelek, pályázatok). Az adásvételi szerződés megkötéséhez igény szerint megbízható ügyvédi közreműködést biztosítunk, és segítséget nyújtunk az adásvételhez kapcsolódó egyéb ügyek intézéséhez. Ha az új ingatlana megvásárlásához a jelenlegi ingatlanát el kell adnia, abban is szívesen segítünk.
Referencia szám: M283926
Referencia szám: M283926-LP
Figyelmeztetés!
A lakpont.com semmiféle felelősséget nem vállal az oldalon megjelent hirdetések tartalmáért, illetve a hirdetésekhez feltöltött képekért! Kérjük keresse a hirdetés feladóját a pontos és részletes információkért.hirdetés
Hirdető:

OTP Ingatlanpont
Budapest XIII. kerület Lehel utca 50
hirdetés
hirdetés
Takács Zsuzsanna
Üzenetem elküldésével elfogadom a lakpont.com
Általános Szolgáltatási Feltételeit

© 2017 lakpont.com
Minden jog fenntartva
Üzemelteti: infonet.hu [ ingatlanapp ]