
87 M Ft
537 037 Ft /m2
162 m2
6 + 1 fél
746 m2

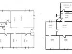
Mikepércs központi részén eladó egy sarki telken található, 2 családi ház.
Az egyik újabb építésű, beton alapra épült tégla falazattal, cserép tetővel, gáz kazános fűtéssel. Itt 2+1 fél szoba , illetve nagy nappali és konyha fürdőszoba található.
A másik ház az korábban épült, vegyes falazattal, pala fedéssel, itt szinten 2+1 szoba, nappali, konyha és fürdőszoba található. Szintén gázfűtéssel rendelkezik, illetve egy tárolásra alkalmas melléképülethez kapcsolódik.
Tetszés szerint modernizálható de nagyon sok lehetőség van benne. Elhelyezkedésének köszönhetően kiválóan alkalmas 2 generációs család számára is, vagy akár vállalkozásra is kimondottan jó adottságokkal rendelkezik. Minden szükséges létesítmény, boltok, orvosi rendelő, busz állomás, gyógyszertár, posta, 5 perc alatt sétálva is elérhető.
További információért hívjon bizalommal akár hétvégén is. Megtekintésre telefonos egyeztetés alapján van lehetőség.
Kedvezményes kamatozású lakásvásárlási és felújítási hitelek az OTP hátterével irodánkban, valamint teljeskörű adásvétellel kapcsolatos ügyintézés.
Érd.Balla László +** ** *** ****
Referencia szám: M285426
Figyelmeztetés!
A lakpont.com semmiféle felelősséget nem vállal az oldalon megjelent hirdetések tartalmáért, illetve a hirdetésekhez feltöltött képekért! Kérjük keresse a hirdetés feladóját a pontos és részletes információkért.hirdetés
Hirdető:

OTP Ingatlanpont
OTP Ingatlanpont Kft
hirdetés
hirdetés
Balla László
Üzenetem elküldésével elfogadom a lakpont.com
Általános Szolgáltatási Feltételeit

© 2017 lakpont.com
Minden jog fenntartva
Üzemelteti: infonet.hu [ ingatlanapp ]