
A felhasználói élmény fokozása és célzott hirdetések kiszolgálása érdekében, valamint kényelmi és statisztikai célból weboldalunk adatokat tárol a készülékén (sütiket) és webszervereken. Abban az esetben, ha hozzájárul a sütik használatához, kattintson az OK gombra. Részletesebb információt az Adatkezelési Szabályzatban talál.
ok38.99 M Ft
906 744 Ft /m2
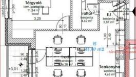
43 m2
2

Győr-Szabadhegy kiváló lokációju városrészében, prémium hőszivattyús padló / mennyezet hűtéssel / fűtéssel és hőszivattyús meleg víz előállítással rendelkező nappali +1 és nappali +2 szobás lakások akár kertkapcsolattal leköthetőek.
Továbbá irodák is, melyek a társasház alapító okirata szerint lakócélra is hasznosíthatóak.
Az emelt szintű fűtés kész alap szerelt készültség a következőket tartalmazza:
A lakások kültér felé eső határoló főfalai 30-40 cm vastagságú falazóelemek, 15 cm vastag hőszigeteléssel. A födémek helyszíni monolit vasbeton lemezek a két lakószinten. A válaszfalak 10-15 cm vastag falazóelemek. Műanyag homlokzati nyílászárók (bukó, nyíló) 3 rétegű üvegezéssel (Ug = 0,6 az üvegre). Rejtett vakolható lindab redőny tok elektromos mozgatás kábelezéssel redőny nélkül. A tető szigetelése 20-25 cm vastag hőszigetelés.
Burkolat nélküli beton aljzatok. Simított belsővakolat elkészítése. Bádogos szerkezetek, külső PVC párkány. Műanyag, több ponton záródó biztonsági bejárati ajtó.
A belső válaszfalak szabadon változtathatóak a gépészeti gerincvezetékek elhelyezkedését figyelem bevéve , így formálhatja új otthonát az Ön igénye szerint. A társas házi lakások emelt szintű szerkezet kész állapotának elkészülése 2024 vége. Részletes műszaki dokumentációért, bővebb információért vagy megtekintéssel kapcsolatban keressen bizalommal a hét bármely napján!
Állok rendelkezésre ingatlan eladás-vétel, pénzügyi termékek, hitel, CSOK ügyintézésében. Több százas ingatlanállományból biztos megtalálom az Ön igényeinek megfelelőt! Hívjon bizalommal: Komádi Csaba +***********
Referencia szám: M260412-LP
Figyelmeztetés!
A lakpont.com semmiféle felelősséget nem vállal az oldalon megjelent hirdetések tartalmáért, illetve a hirdetésekhez feltöltött képekért! Kérjük keresse a hirdetés feladóját a pontos és részletes információkért.hirdetés
Hirdető:

OTP Ingatlanpont
Győr Rákóczi Ferenc utca 35
hirdetés
hirdetés
Komádi Csaba
Üzenetem elküldésével elfogadom a lakpont.com
Általános Szolgáltatási Feltételeit

© 2017 lakpont.com
Minden jog fenntartva
Üzemelteti: infonet.hu [ ingatlanapp ]