
A felhasználói élmény fokozása és célzott hirdetések kiszolgálása érdekében, valamint kényelmi és statisztikai célból weboldalunk adatokat tárol a készülékén (sütiket) és webszervereken. Abban az esetben, ha hozzájárul a sütik használatához, kattintson az OK gombra. Részletesebb információt az Adatkezelési Szabályzatban talál.
ok3 800 €
10 € /m2
400 m2

Kiadó irodákat és kisebb raktárakat kínálunk a Metropol South Irodaházban, a XIII. kerületben.
Az irodaház könnyen megközelíthető helyen, a Lehel utca - Dózsa György út - Váci út - Róbert Károly körút által közrezárt területen helyezkedik el. Több villamos, busz és troli, valamint az M3 metró is rendelkezik megállóval a környéken. Az ingatlan közvetlen környezete csendes, parkosított, így biztosítja a nyugodt munkavégzést.
Az irodaház elhelyezkedésének köszönhetően számos étkezési, sportolási, vásárlási és ügyintézési lehetőség van a környéken.
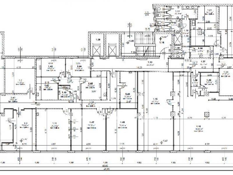
Az emeleteken található irodák mindegyike légkondicionált, rugalmasan alakítható. 150 nm-től akár 2300 nm-ig kínálunk bérelhető területeket. Az irodák mellett egy tárgyaló, két konyha és két szerverszoba is megtalálható itt. Az épület pincéjében kisebb raktárhelyiségek kerültek kialakításra.
Kialakítástól és elhelyezkedéstől függően az itt megadott árak, alaprajzok esetlegesen változhatnak, eltérhetnek az itt megadottól (a konkrét igények alapján tud a tulajdonos megadni végleges árat és tudja kialakítani az elrendezést.)
Egyes esetekben közös területi szorzó is felszámolásra kerülhet.
Az irodaház rendelkezik belső parkolóval, kerékpártárolóval. 24 órás portaszolgálat van az épületben.
- Ingatlan teljes területe: 3 779 nm
- Kiváló tömegközlekedés
- Rugalmas belső terek
- Légkondicionált irodák
- Emelt padló
- Lift
- 24 órás portaszolgálat
- Belső, udvari parkoló
- Kerékpártároló
- Étkezési lehetőségek a közelben
A feltüntetett bérleti díjak NEM tartalmazzák az ÁFÁ-t.
Bérléshez szükséges 2 illetve 3 havi kaució + 1 havi bérleti díj.
A bérleti díjon felül fenntartási és üzemeltetési díj is fizetendő:
M202135
Referencia szám: M202135-LP
Figyelmeztetés!
A lakpont.com semmiféle felelősséget nem vállal az oldalon megjelent hirdetések tartalmáért, illetve a hirdetésekhez feltöltött képekért! Kérjük keresse a hirdetés feladóját a pontos és részletes információkért.hirdetés
Hirdető:

OTP Ingatlanpont
Budapest XIII. kerület Lehel utca 50
hirdetés
hirdetés
Takács Zsuzsanna
Üzenetem elküldésével elfogadom a lakpont.com
Általános Szolgáltatási Feltételeit

© 2017 lakpont.com
Minden jog fenntartva
Üzemelteti: infonet.hu [ ingatlanapp ]